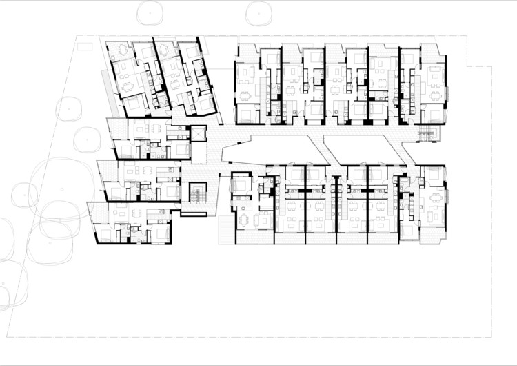
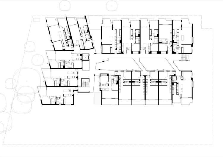
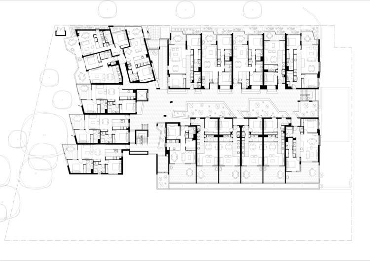
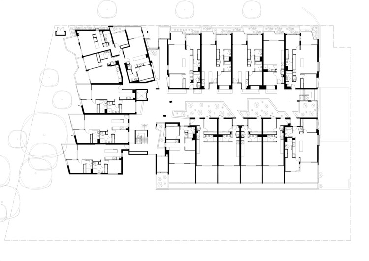
21 Peter Doherty Street / COX Architecture

  • Architects

    COX Architecture

  • Location

    Brisbane QLD, Australia

  • Category

    Apartments

  • Project Year

    2016

  • Photographs

    Christopher Frederick Jones


















Подпишитесь на
Estatemag

Получайте ценную информацию о стратегии, культуре и бренде прямо в свой почтовый ящик.


    Подписываясь на получение электронных писем от Motto, вы соглашаетесь с нашей Политикой конфиденциальности. Мы ответственно относимся к вашей информации. Откажитесь от подписки в любое время.