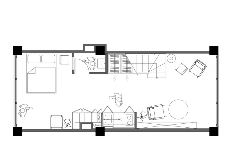
33 m? flat / Studio Bazi

  • Architects

    Studio Bazi

  • Location

    Moscow, Russia

  • Category

    Apartments

  • Architect in Charge

    Alireza Nemati

  • Area

    33.0 m2

  • Project Year

    2017

  • Photographs

    Polina Poludkina

































Подпишитесь на
Estatemag

Получайте ценную информацию о стратегии, культуре и бренде прямо в свой почтовый ящик.


    Подписываясь на получение электронных писем от Motto, вы соглашаетесь с нашей Политикой конфиденциальности. Мы ответственно относимся к вашей информации. Откажитесь от подписки в любое время.