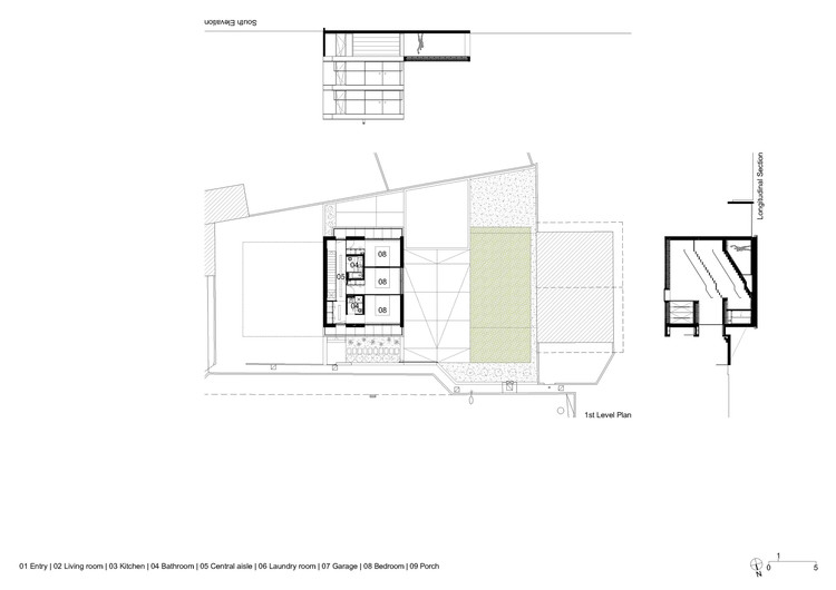
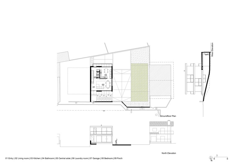
Agucadoura House / Raulino Silva Arquitecto

  • Architects

    Raulino Silva Arquitecto

  • Location

    Povoa de Varzim, Portugal

  • Category

    Houses

  • Team

    Raulino Silva, Daniela Amorim, Joao Mendes, Helder Silva, Jorge Dias, Catia Sampaio, Giulia Pecorari, Marco Camilletti

  • Area

    210.0 m2

  • Project Year

    2018

  • Photographs

    Joao Morgado































Подпишитесь на
Estatemag

Получайте ценную информацию о стратегии, культуре и бренде прямо в свой почтовый ящик.


    Подписываясь на получение электронных писем от Motto, вы соглашаетесь с нашей Политикой конфиденциальности. Мы ответственно относимся к вашей информации. Откажитесь от подписки в любое время.