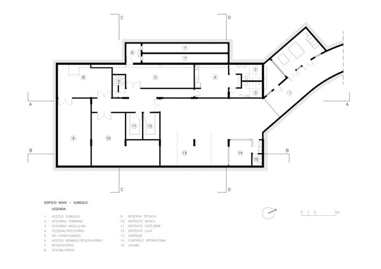
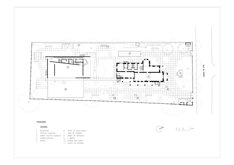
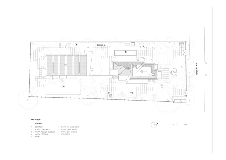
Bahia Rodin Museum / Brasil Arquitetura

  • Architects

    Brasil Arquitetura

  • Location

    R. da Graca, 284 – Graca, Salvador – BA, 40150-480, Brazil

  • Category

    Historic Preservation

  • Lead Architect

    Francisco Fanucci, Marcelo Ferraz and Cicero Ferraz Cruz

  • Design Team

    Albert Sugai, Bruno Levy, Gabriel Grinspum and Rodrigo Izecson

  • Area

    3055.0 m2

  • Project Year

    2002

  • Photographs

    Nelson Kon



































Подпишитесь на
Estatemag

Получайте ценную информацию о стратегии, культуре и бренде прямо в свой почтовый ящик.


    Подписываясь на получение электронных писем от Motto, вы соглашаетесь с нашей Политикой конфиденциальности. Мы ответственно относимся к вашей информации. Откажитесь от подписки в любое время.