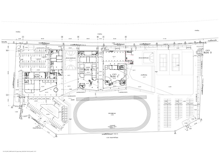
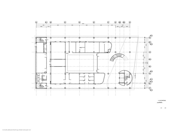
Bangkok International Preparatory & Secondary School (Bangkok Prep) II / Plan Architect

  • Architects

    Plan Architect

  • Location

    Sukhumvit 77, Khwaeng Suan Luang, Khet Suan Luang, Krung Thep Maha Nakhon 10250, Thailand

  • Category

    High School

  • Design Team

    Wara Jithpratuck, Jittinun Jithpratuck, Pich Chinmahavong, Nathida Sornchumni

  • Area

    19200.0 m2

  • Project Year

    2017

  • Photographs

    PanoramicStudio




























Подпишитесь на
Estatemag

Получайте ценную информацию о стратегии, культуре и бренде прямо в свой почтовый ящик.


    Подписываясь на получение электронных писем от Motto, вы соглашаетесь с нашей Политикой конфиденциальности. Мы ответственно относимся к вашей информации. Откажитесь от подписки в любое время.