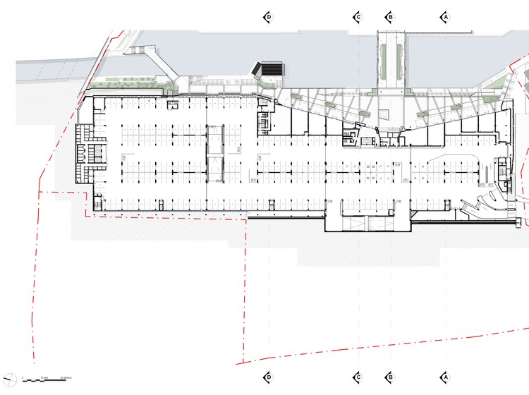
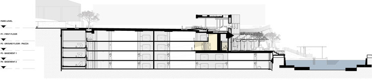
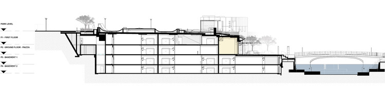
Battery Park / dhk Architects

  • Architects

    dhk (Pierre Swanepoel, Martin Lardner-Burke, Theo Gutter)

  • Location

    Battery Park, V & A Waterfront, Cape Town, 8001, South Africa

  • Category

    Park

  • Project Manager

    Igual (Ben Day)

  • Area

    12000.0 m2

  • Project Year

    2018

  • Photographs

    Dave Southwood, Theo Gutter























Подпишитесь на
Estatemag

Получайте ценную информацию о стратегии, культуре и бренде прямо в свой почтовый ящик.


    Подписываясь на получение электронных писем от Motto, вы соглашаетесь с нашей Политикой конфиденциальности. Мы ответственно относимся к вашей информации. Откажитесь от подписки в любое время.