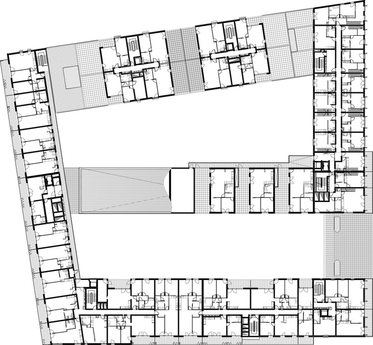
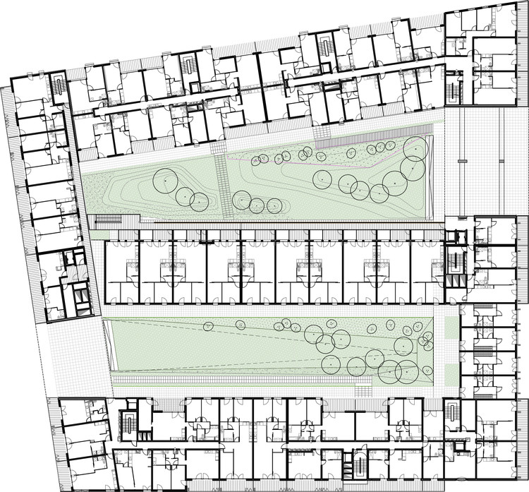
Bayonne Marinadour / Mateo Arquitectura

  • Architects

    Mateo Arquitectura

  • Location

    Bayonne, France

  • Category

    Housing

  • Architect in Charge

    Josep Lluis Mateo

  • Area

    70000.0 m2

  • Project Year

    2015

  • Photographs

    Aitor Estevez






























Подпишитесь на
Estatemag

Получайте ценную информацию о стратегии, культуре и бренде прямо в свой почтовый ящик.


    Подписываясь на получение электронных писем от Motto, вы соглашаетесь с нашей Политикой конфиденциальности. Мы ответственно относимся к вашей информации. Откажитесь от подписки в любое время.