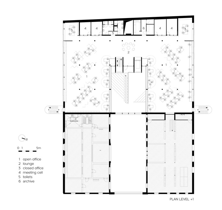
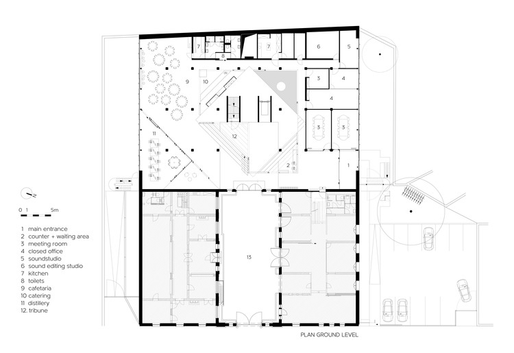
BBDO Brussels / ZAmpone Architectuur

  • Architects

    ZAmpone Architectuur

  • Location

    Bruselas, Belgium

  • Category

    Office Buildings

  • Lead Architects

    Bart Van Leeuw & Kevin Van Steenbergen

  • Area

    2695.0 m2

  • Project Year

    2018

  • Photographs

    Tim Van De Velde

































Подпишитесь на
Estatemag

Получайте ценную информацию о стратегии, культуре и бренде прямо в свой почтовый ящик.


    Подписываясь на получение электронных писем от Motto, вы соглашаетесь с нашей Политикой конфиденциальности. Мы ответственно относимся к вашей информации. Откажитесь от подписки в любое время.