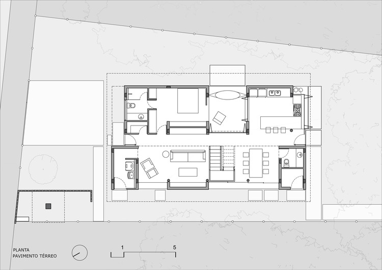
Beach House in Prumirim / brro arquitetos

  • Architects

    brro arquitetos

  • Location

    Ubatuba, Brazil

  • Category

    Houses

  • Architect in Charge

    Bruno Rossi

  • Area

    190.0 m2

  • Project Year

    2017

  • Photographs

    Andre Scarpa






























Подпишитесь на
Estatemag

Получайте ценную информацию о стратегии, культуре и бренде прямо в свой почтовый ящик.


    Подписываясь на получение электронных писем от Motto, вы соглашаетесь с нашей Политикой конфиденциальности. Мы ответственно относимся к вашей информации. Откажитесь от подписки в любое время.