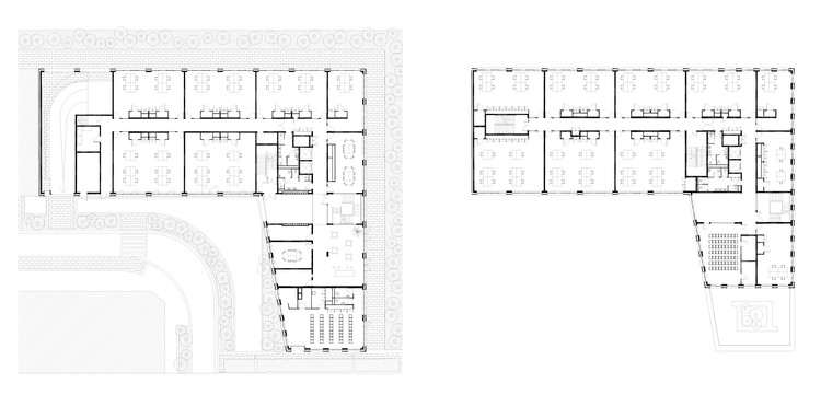
Business Center Binet / AZC Architectes

  • Architects

    AZC Architectes

  • Location

    Paris, France

  • Category

    Office Buildings

  • Area

    7240.0 m2

  • Project Year

    2018

  • Photographs

    Sergio Grazia






















Подпишитесь на
Estatemag

Получайте ценную информацию о стратегии, культуре и бренде прямо в свой почтовый ящик.


    Подписываясь на получение электронных писем от Motto, вы соглашаетесь с нашей Политикой конфиденциальности. Мы ответственно относимся к вашей информации. Откажитесь от подписки в любое время.