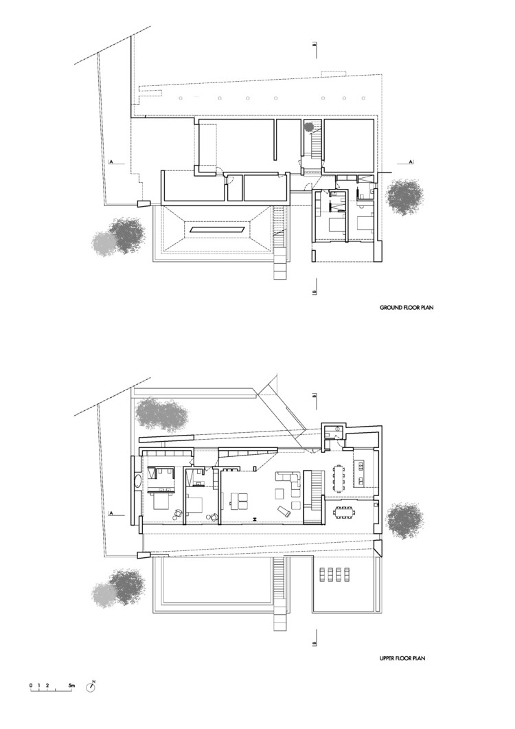
Carrara House / Mario Martins Atelier

  • Architects

    Mario Martins Atelier

  • Location

    Praia da Luz, Portugal

  • Category

    Houses

  • Author

    Mario Martins

  • Area

    400.0 m2

  • Project Year

    2017

  • Photographs

    Fernando Guerra | FG+SG


























Подпишитесь на
Estatemag

Получайте ценную информацию о стратегии, культуре и бренде прямо в свой почтовый ящик.


    Подписываясь на получение электронных писем от Motto, вы соглашаетесь с нашей Политикой конфиденциальности. Мы ответственно относимся к вашей информации. Откажитесь от подписки в любое время.