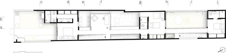
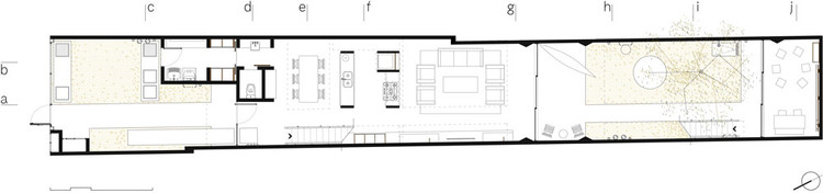
Casa Havai / Garoa + Chico Barros

  • Architects

    Chico Barros, Garoa

  • Location

    Sumare, Brazil

  • Category

    Houses

  • Lead Architects

    Alexandre Gervasio, Erico Botteselli, Lucas Thome, Pedro de Bona, Chico Barros

  • Area

    2045.14 ft2

  • Project Year

    2017

  • Photographs

    Pedro Napolitano Prata

































































Подпишитесь на
Estatemag

Получайте ценную информацию о стратегии, культуре и бренде прямо в свой почтовый ящик.


    Подписываясь на получение электронных писем от Motto, вы соглашаетесь с нашей Политикой конфиденциальности. Мы ответственно относимся к вашей информации. Откажитесь от подписки в любое время.