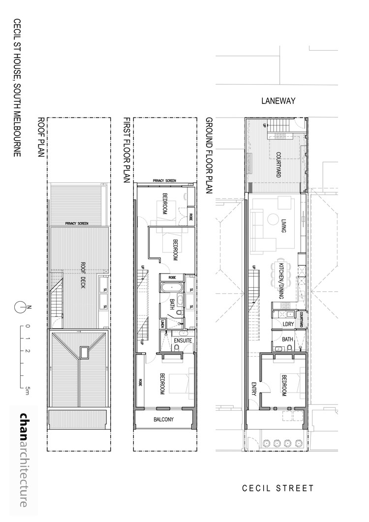
Cecil St House / Chan Architecture

  • Architects

    Chan Architecture

  • Location

    South Melbourne, Australia

  • Category

    Extension

  • Project Team

    Anthony Chan, Meyvin Puspita

  • Project Year

    2018

  • Photographs

    Tatjana Plitt










Подпишитесь на
Estatemag

Получайте ценную информацию о стратегии, культуре и бренде прямо в свой почтовый ящик.


    Подписываясь на получение электронных писем от Motto, вы соглашаетесь с нашей Политикой конфиденциальности. Мы ответственно относимся к вашей информации. Откажитесь от подписки в любое время.