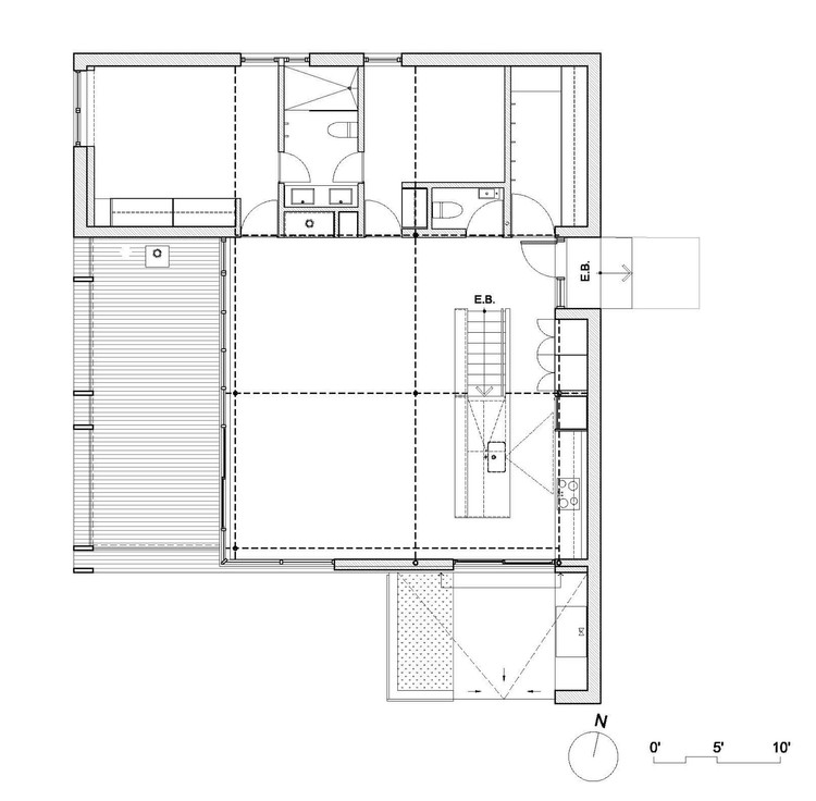
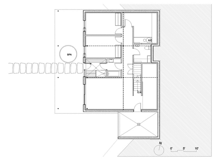
Chalet La Barque / ACDF Architecture

  • Architects

    ACDF Architecture

  • Location

    Saint-Donat, QC J0T, Canada

  • Category

    Residential

  • Lead Architects

    ACDF Architecture

  • Design Team

    Maxime-Alexis Frappier, Patrick Morand, Kassandra Bonneville, Yoanna Anastassova, Mireille Letourneau, Romilda Reda

  • Area

    260.0 m2

  • Project Year

    2018

  • Photographs

    Adrien Williams


















Подпишитесь на
Estatemag

Получайте ценную информацию о стратегии, культуре и бренде прямо в свой почтовый ящик.


    Подписываясь на получение электронных писем от Motto, вы соглашаетесь с нашей Политикой конфиденциальности. Мы ответственно относимся к вашей информации. Откажитесь от подписки в любое время.