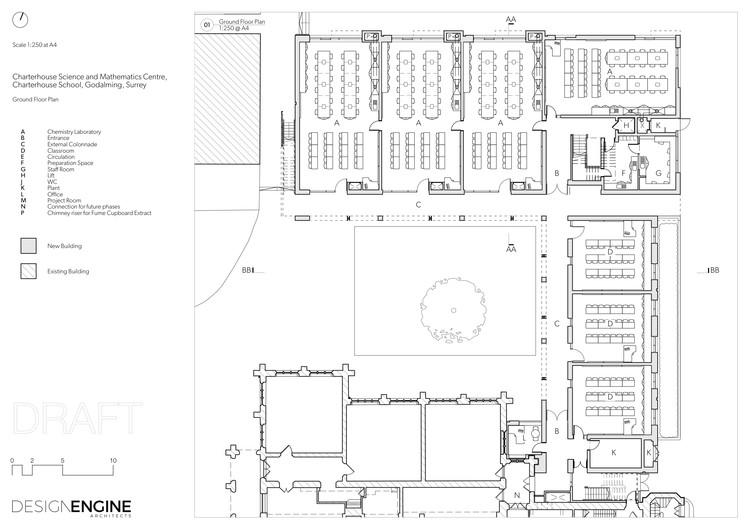
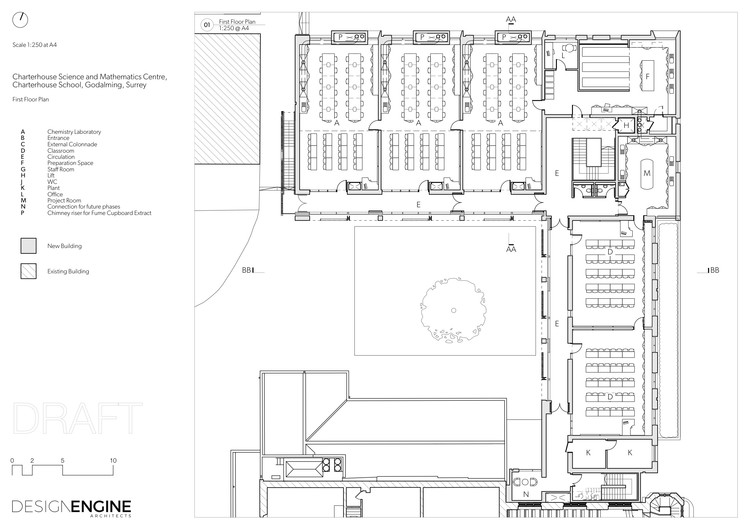
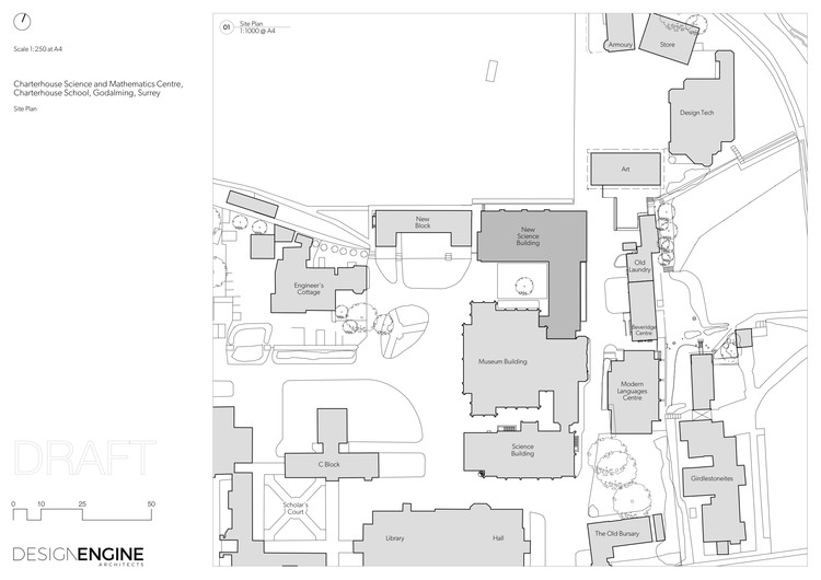
Charterhouse Science & Mathematics Centre / Design Engine Architects

  • Architects

    Design Engine Architects

  • Location

    Charterhouse Rd, Godalming GU7 2DL, United Kingdom

  • Category

    Science Center

  • Area

    1800.0 m2

  • Project Year

    2018

  • Photographs

    Peter Blundy/Design Engine































Подпишитесь на
Estatemag

Получайте ценную информацию о стратегии, культуре и бренде прямо в свой почтовый ящик.


    Подписываясь на получение электронных писем от Motto, вы соглашаетесь с нашей Политикой конфиденциальности. Мы ответственно относимся к вашей информации. Откажитесь от подписки в любое время.