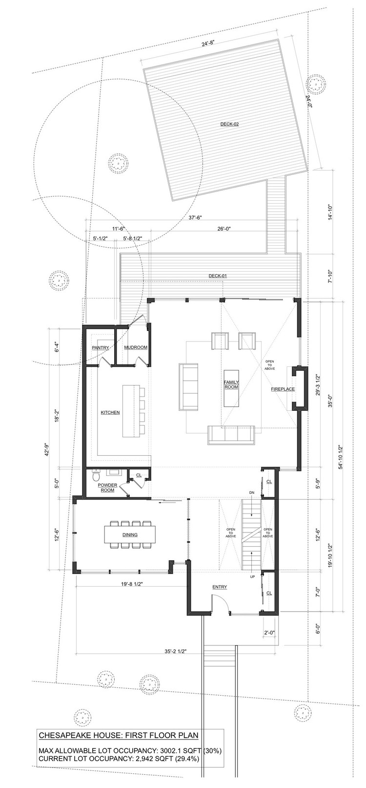
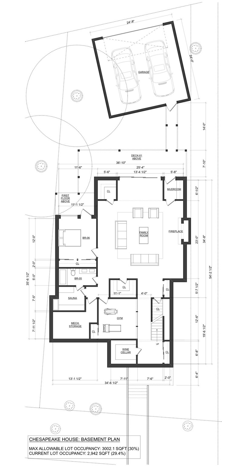
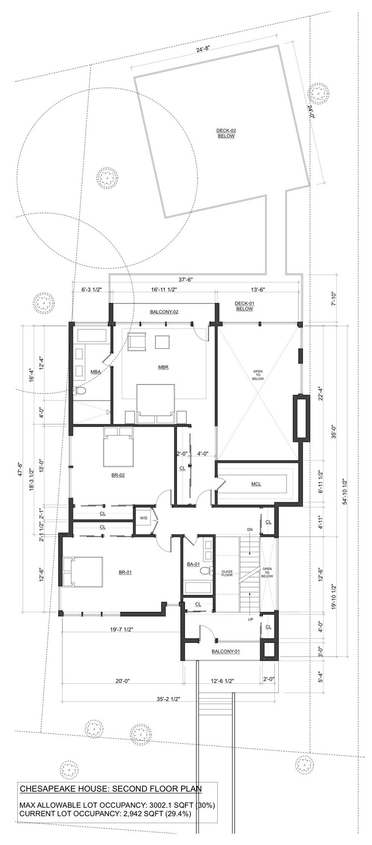
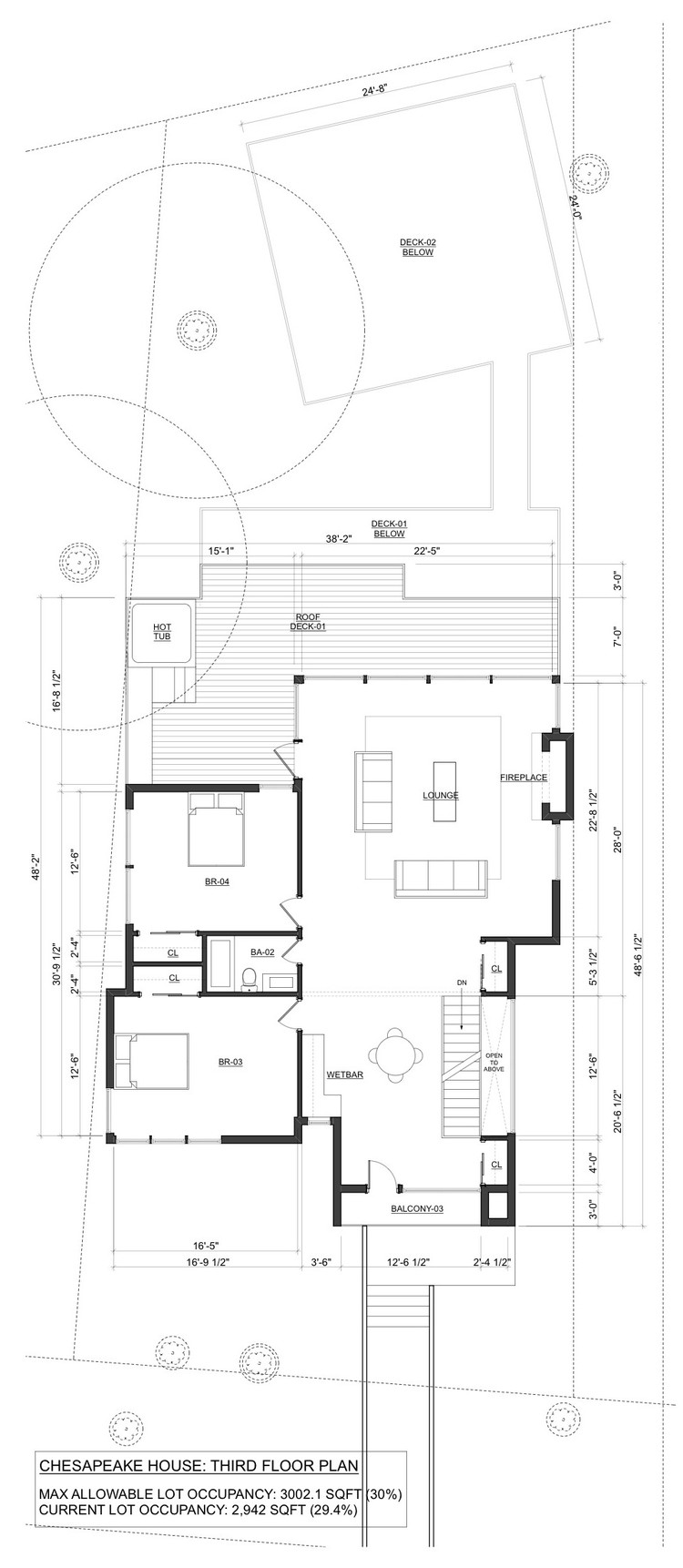
Chesapeake House / KUBE architecture

  • Architects

    KUBE architecture

  • Location

    Washington, United States

  • Category

    Houses

  • Lead Architect

    Richard Loosle Ortega, Janet Bloomberg

  • Area

    7300.0 ft2

  • Project Year

    2017

  • Photographs

    HD Bros

































Подпишитесь на
Estatemag

Получайте ценную информацию о стратегии, культуре и бренде прямо в свой почтовый ящик.


    Подписываясь на получение электронных писем от Motto, вы соглашаетесь с нашей Политикой конфиденциальности. Мы ответственно относимся к вашей информации. Откажитесь от подписки в любое время.