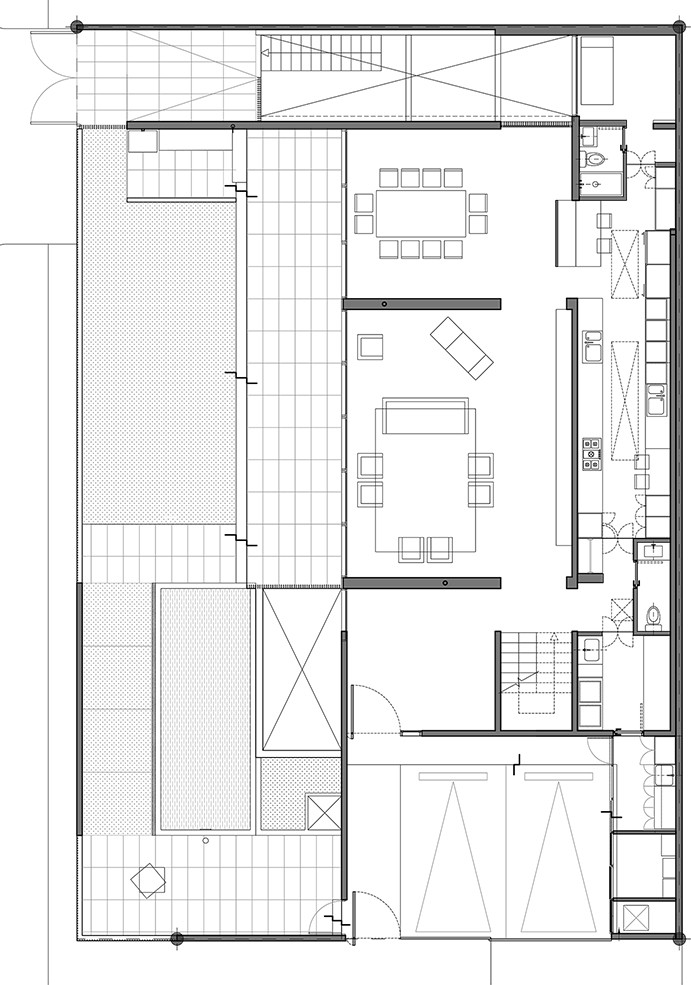
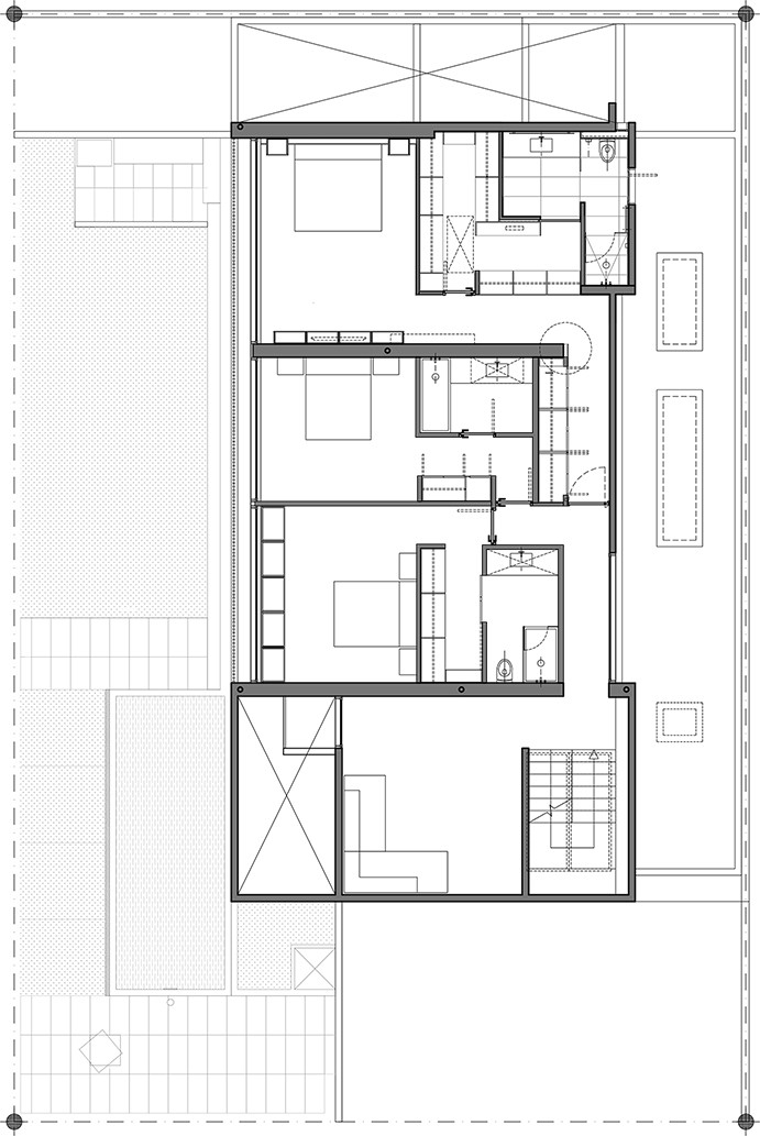
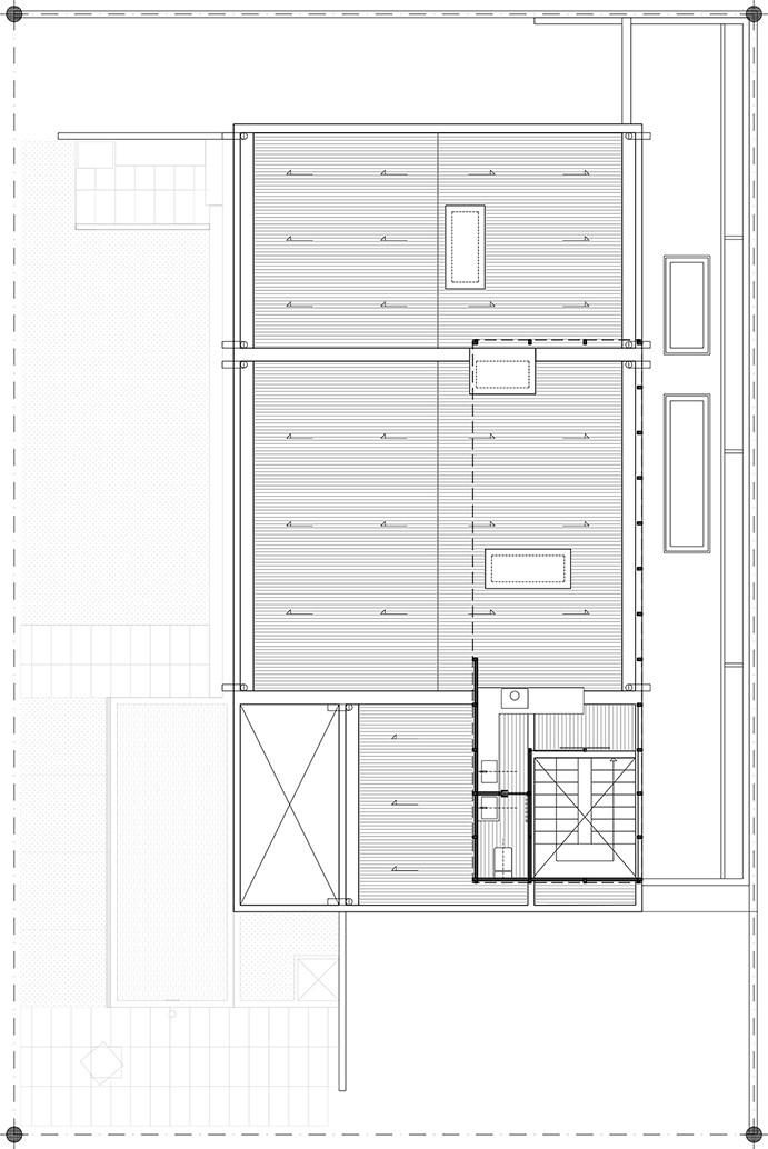
CHS House / Chauriye Stager Arquitectos

  • Architects

    Chauriye Stager Arquitectos

  • Location

    Vitacura, Chile

  • Category

    Houses

  • Lead Architect

    Beatriz Stager, Rodrigo Chauriye

  • Area

    480.0 m2

  • Project Year

    2019

  • Photographs

    Pablo Casals Aguirre
























Подпишитесь на
Estatemag

Получайте ценную информацию о стратегии, культуре и бренде прямо в свой почтовый ящик.


    Подписываясь на получение электронных писем от Motto, вы соглашаетесь с нашей Политикой конфиденциальности. Мы ответственно относимся к вашей информации. Откажитесь от подписки в любое время.