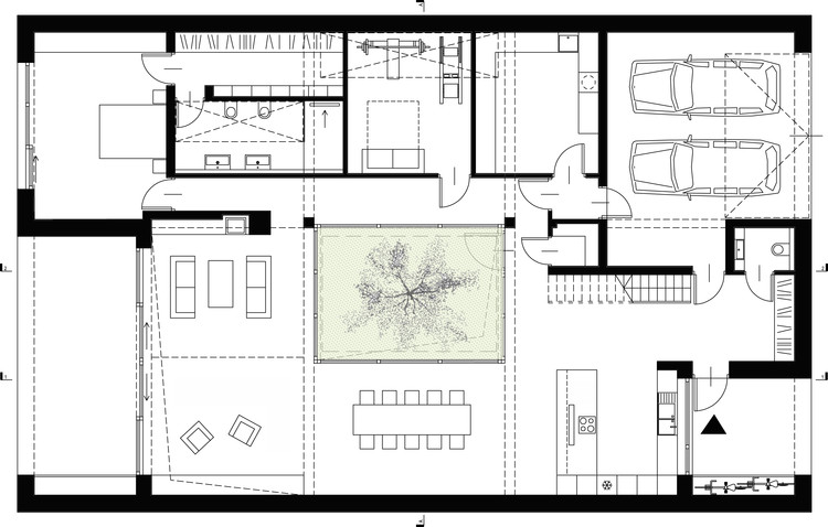
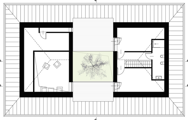
Courtyard House / INOSTUDIO

  • Architects

    INOSTUDIO

  • Location

    Gliwice, Poland

  • Category

    Houses

  • Lead Architects

    Zbigniew Gieczak, Magdalena Gierczak

  • Interiors

    Ajot pracownia projektowa

  • Area

    280.0 m2

  • Project Year

    2016

  • Photographs

    Marcin Grabowiecki














































Подпишитесь на
Estatemag

Получайте ценную информацию о стратегии, культуре и бренде прямо в свой почтовый ящик.


    Подписываясь на получение электронных писем от Motto, вы соглашаетесь с нашей Политикой конфиденциальности. Мы ответственно относимся к вашей информации. Откажитесь от подписки в любое время.