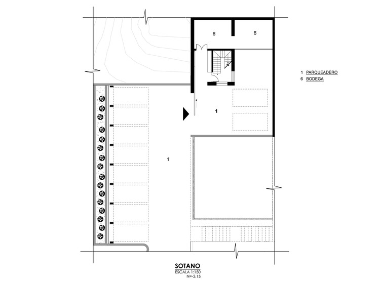
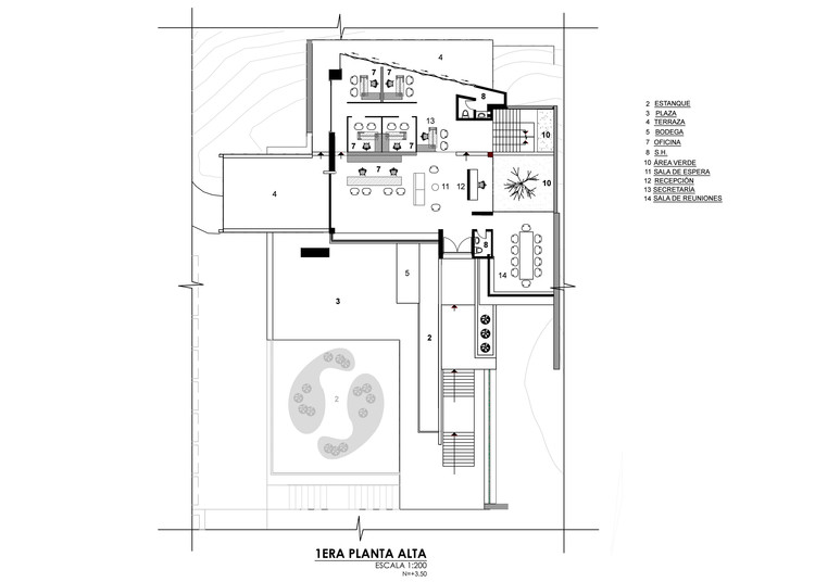
Covalco Offices / INAI.Paul Vazquez

  • Architects

    INAI.Paul Vazquez

  • Location

    Cuenca, Ecuador

  • Category

    Office Buildings

  • Project Area

    1200.0 m2

  • Project Year

    2014


















Подпишитесь на
Estatemag

Получайте ценную информацию о стратегии, культуре и бренде прямо в свой почтовый ящик.


    Подписываясь на получение электронных писем от Motto, вы соглашаетесь с нашей Политикой конфиденциальности. Мы ответственно относимся к вашей информации. Откажитесь от подписки в любое время.