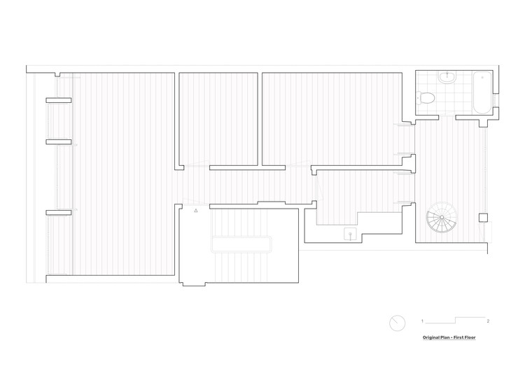
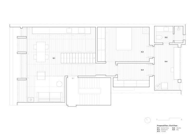
Dom Vasco Apartment / Arriba

  • Architects

    Arriba

  • Location

    Tv. Dom Vasco, 1300 Lisboa, Portugal

  • Category

    Apartment Interiors

  • Team

    Jose Andrade Rocha, Filipe Ferreira

  • Area

    115.0 m2

  • Project Year

    2018

  • Photographs

    Hugo Santos Silva
















Подпишитесь на
Estatemag

Получайте ценную информацию о стратегии, культуре и бренде прямо в свой почтовый ящик.


    Подписываясь на получение электронных писем от Motto, вы соглашаетесь с нашей Политикой конфиденциальности. Мы ответственно относимся к вашей информации. Откажитесь от подписки в любое время.