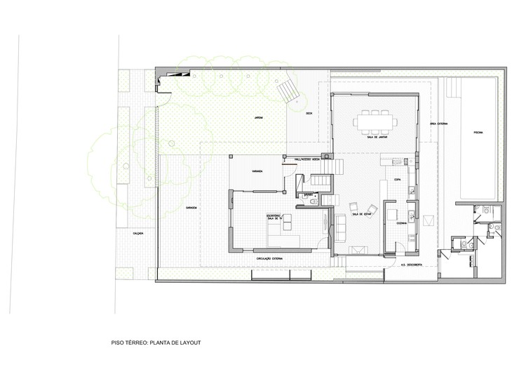
Eaves House / Zoom Urbanismo Arquitetura e Design

  • Architects

    Zoom Urbanismo, Arquitetura e Design

  • Location

    Sao Paulo, Brazil

  • Category

    Houses

  • Design Team

    Guilherme Ortenblad, Kathleen Chiang, Mariane Takahashi Christovam, Ana Carolina de Lima, Mariana Poli Gortan, Rosa Clara Alves e Karin Kussaba.

  • Area

    4843.76 ft2

  • Project Year

    2017

  • Photographs

    Maira Acayaba



















Подпишитесь на
Estatemag

Получайте ценную информацию о стратегии, культуре и бренде прямо в свой почтовый ящик.


    Подписываясь на получение электронных писем от Motto, вы соглашаетесь с нашей Политикой конфиденциальности. Мы ответственно относимся к вашей информации. Откажитесь от подписки в любое время.