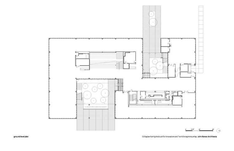
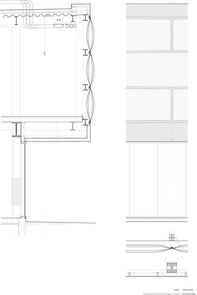
Ed Kaplan Family Institute / John Ronan Architects

  • Architects

    John Ronan Architects

  • Location

    Chicago, IL, United States

  • Category

    Institute

  • Director, Lead Designer

    John Ronan FAIA

  • Project Architect

    Marcin Szef

  • Project Team

    Danielle Beaulieu, Sam Park, Eric Cheng, Laura Gomez Hernandez

  • Area

    72000.0 ft2

  • Project Year

    2018

  • Photographs

    Steve Hall
















































Подпишитесь на
Estatemag

Получайте ценную информацию о стратегии, культуре и бренде прямо в свой почтовый ящик.


    Подписываясь на получение электронных писем от Motto, вы соглашаетесь с нашей Политикой конфиденциальности. Мы ответственно относимся к вашей информации. Откажитесь от подписки в любое время.