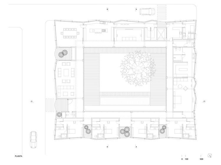
El Cortijo House / Felipe Assadi Arquitectos

  • Architects

    Felipe Assadi, Trinidad Schonthaler

  • Location

    Urb. El Cortijo, Samborondon, Ecuador

  • Category

    Housing

  • Project Year

    2018

  • Photographs

    Fernando Alda



























Подпишитесь на
Estatemag

Получайте ценную информацию о стратегии, культуре и бренде прямо в свой почтовый ящик.


    Подписываясь на получение электронных писем от Motto, вы соглашаетесь с нашей Политикой конфиденциальности. Мы ответственно относимся к вашей информации. Откажитесь от подписки в любое время.