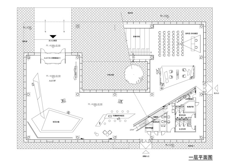
Exhibition Center of Beijing Poly Future Metropolitan / BIAD

  • Architects

    BIAD

  • Location

    Ding Si Lu, Beijing Shi, China

  • Category

    Museums & Exhibit

  • Lead Architects

    Song Du, Zhipeng Liu, JingnanZhang

  • Design Group

    No. 1 Architectural Design Institute

  • Area

    1663.0 m2

  • Project Year

    2017

  • Photographs

    Chaoying Yang



























Подпишитесь на
Estatemag

Получайте ценную информацию о стратегии, культуре и бренде прямо в свой почтовый ящик.


    Подписываясь на получение электронных писем от Motto, вы соглашаетесь с нашей Политикой конфиденциальности. Мы ответственно относимся к вашей информации. Откажитесь от подписки в любое время.