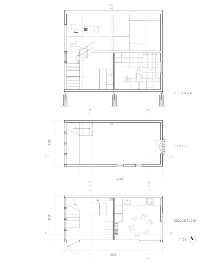
Experimental Housing / Noysom arkitekter

  • Architects

    Noysom arkitekter

  • Location

    Norway

  • Category

    Houses

  • Lead Architects

    Trygve Ohren, Haakon Haanes, Cathrine Johansen Haanes

  • Client

    Svartlamoen boligstiftelse

  • Self Builders

    Siri Gj?re, Torfinn Borkhus, Iacob Somme, Per Kristian Nygard, Line Anda Dalmar, Markus Lantto, Johanna Gullberg, Guro Sletnes, John Harald Strandskog

  • Carpenter

    Arnleiv Overgard

  • Area

    350.0 m2

  • Project Year

    2017

  • Photographs

    Line Anda Dalmar, Vigdis Haugtro


























Подпишитесь на
Estatemag

Получайте ценную информацию о стратегии, культуре и бренде прямо в свой почтовый ящик.


    Подписываясь на получение электронных писем от Motto, вы соглашаетесь с нашей Политикой конфиденциальности. Мы ответственно относимся к вашей информации. Откажитесь от подписки в любое время.