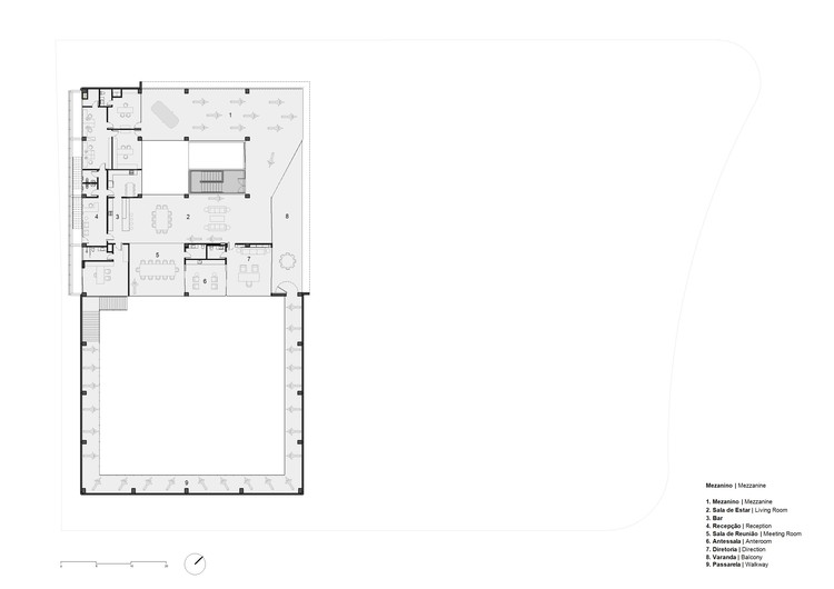
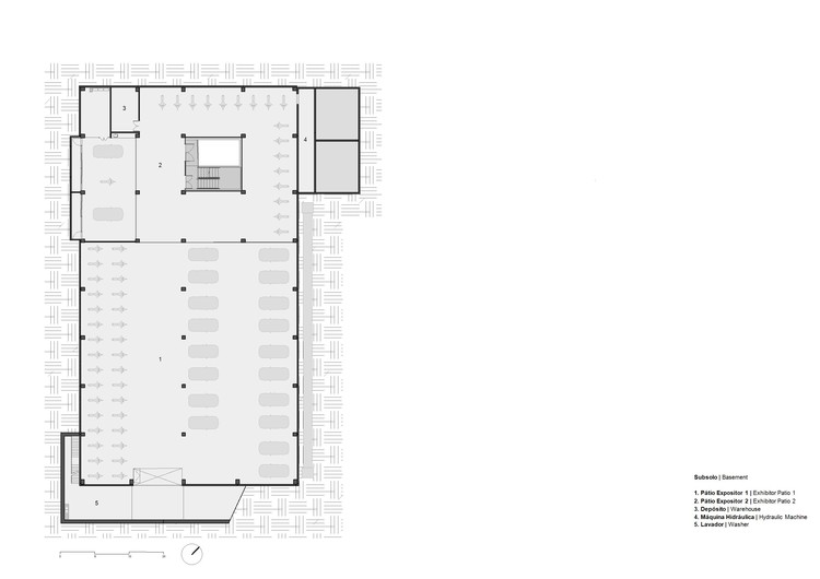
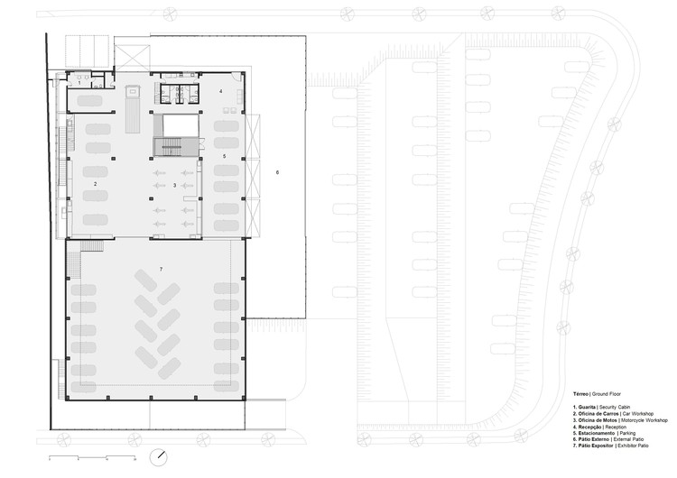
FBF Collezione / N2B Arquitetura

  • Architects

    N2B Arquitetura

  • Location

    Irene Toniolli Domench – Jardim Nova Alianca Sul, Ribeirao Preto – SP, Brazil

  • Category

    Exhibition Center

  • Lead Architect

    Caio Yoshiaki Nagano, Rodolfo Biagi Becker

  • Area

    3516.9 m2

  • Project Year

    2016

  • Photographs

    Fran Parente























































Подпишитесь на
Estatemag

Получайте ценную информацию о стратегии, культуре и бренде прямо в свой почтовый ящик.


    Подписываясь на получение электронных писем от Motto, вы соглашаетесь с нашей Политикой конфиденциальности. Мы ответственно относимся к вашей информации. Откажитесь от подписки в любое время.