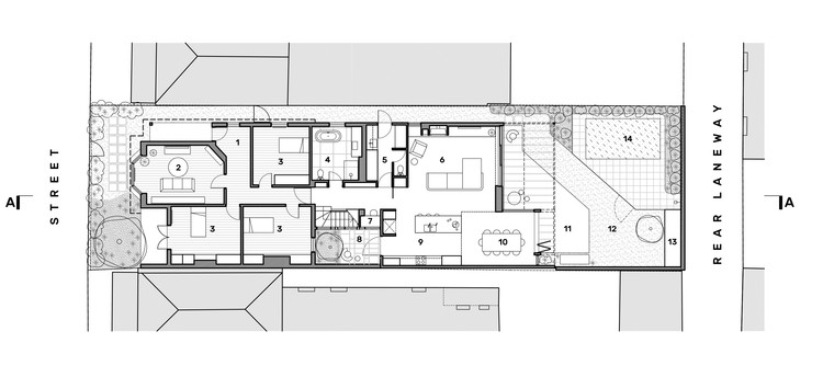
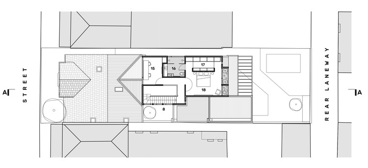
Fitzroy North House / BENT Architecture

  • Architects

    BENT Architecture

  • Location

    Melbourne, Australia

  • Category

    Houses

  • Project Year

    2017

  • Photographs

    Tatjana Plitt






















Подпишитесь на
Estatemag

Получайте ценную информацию о стратегии, культуре и бренде прямо в свой почтовый ящик.


    Подписываясь на получение электронных писем от Motto, вы соглашаетесь с нашей Политикой конфиденциальности. Мы ответственно относимся к вашей информации. Откажитесь от подписки в любое время.