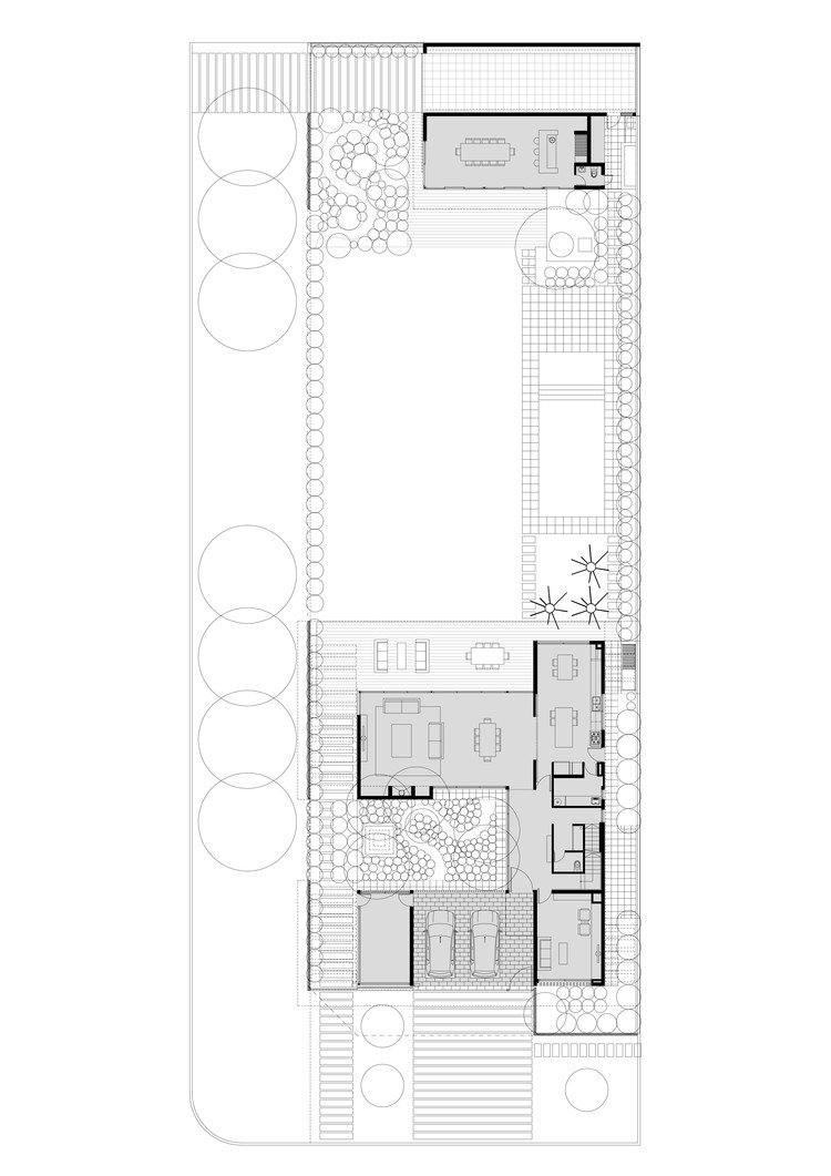
Fluxa House / Gianserra + Lima arquitectos

  • Architects

    Gianserra + Lima arquitectos

  • Location

    La Plata, Argentina

  • Category

    Houses Interiors

  • Lead Architects

    Fernando Gianserra, Luis Gonzalo Lima

  • Design Team

    arq. Lucia Sarghini, arq. Claudio Montes de Oca

  • Structural Engineering

    Estudio Lima

  • Area

    400.0 m2

  • Project Year

    2017

  • Photographs

    arq. Luis Barandiaran
























Подпишитесь на
Estatemag

Получайте ценную информацию о стратегии, культуре и бренде прямо в свой почтовый ящик.


    Подписываясь на получение электронных писем от Motto, вы соглашаетесь с нашей Политикой конфиденциальности. Мы ответственно относимся к вашей информации. Откажитесь от подписки в любое время.