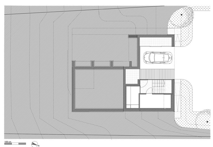
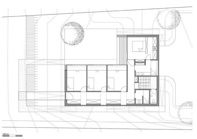
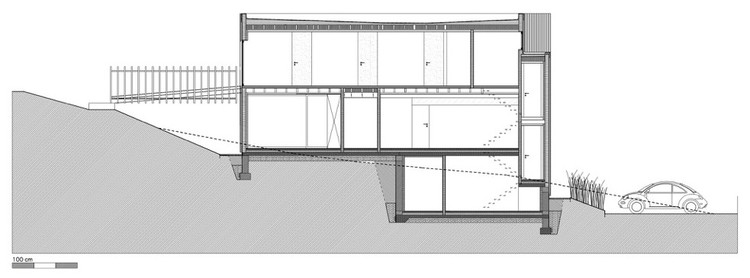
Habitation Mathieu / Crahay & Jamaigne

  • Architects

    Crahay & Jamaigne

  • Location

    Thy-le-Bauduin, Belgium

  • Category

    Houses

  • Lead Architects

    Jean-Francois Crahay & Guy Jamaigne

  • Collaborator

    Solange Dumez

  • Area

    113.0 m2

  • Project Year

    2015

  • Photographs

    Laurent Brandajs































Подпишитесь на
Estatemag

Получайте ценную информацию о стратегии, культуре и бренде прямо в свой почтовый ящик.


    Подписываясь на получение электронных писем от Motto, вы соглашаетесь с нашей Политикой конфиденциальности. Мы ответственно относимся к вашей информации. Откажитесь от подписки в любое время.