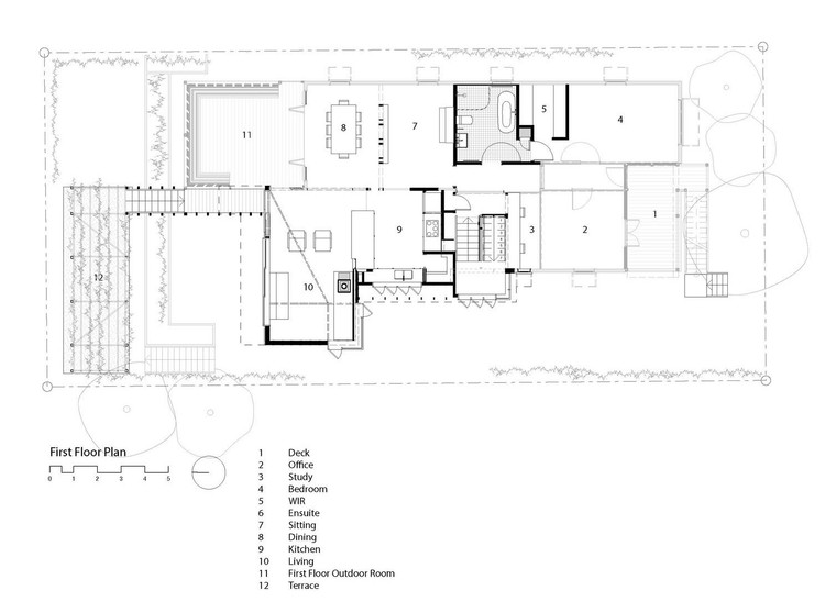
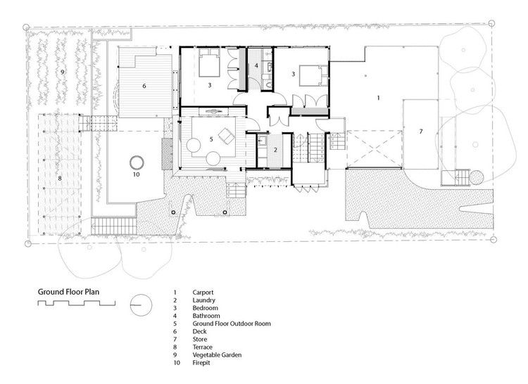
Harriet House / Bligh Graham Architects

  • Architects

    Bligh Graham Architects

  • Location

    Brisbane, Australia

  • Category

    Extension

  • Design Team

    Chris Bligh, Sonia Graham, Heidi Nielsen, Daniel Hall Engineering: AD Structure Interior

  • Stylist

    Caro Toledo Landscape: Steven Clegg

  • Builder

    JSC Prestige Homes

  • Existing Area

    115.0 m2

  • Added Area

    95.0 m2

  • Project Year

    2017

  • Photographs

    Christopher Frederick Jones
























Подпишитесь на
Estatemag

Получайте ценную информацию о стратегии, культуре и бренде прямо в свой почтовый ящик.


    Подписываясь на получение электронных писем от Motto, вы соглашаетесь с нашей Политикой конфиденциальности. Мы ответственно относимся к вашей информации. Откажитесь от подписки в любое время.