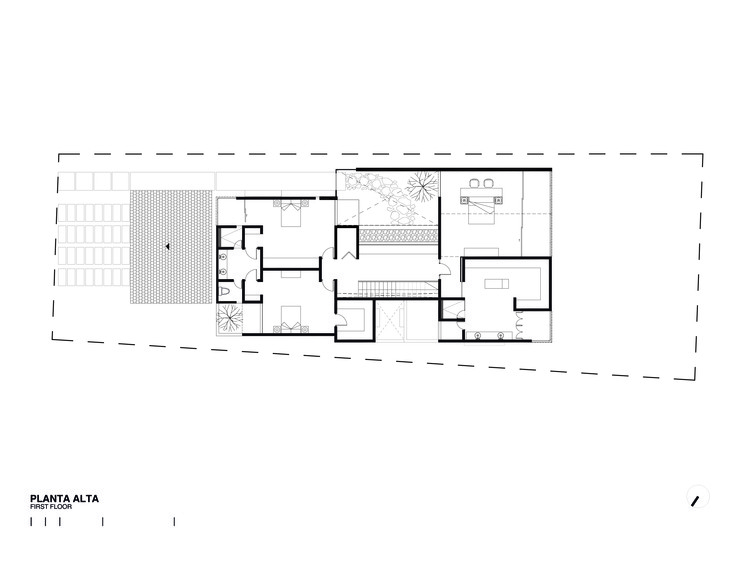
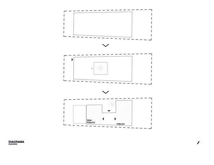
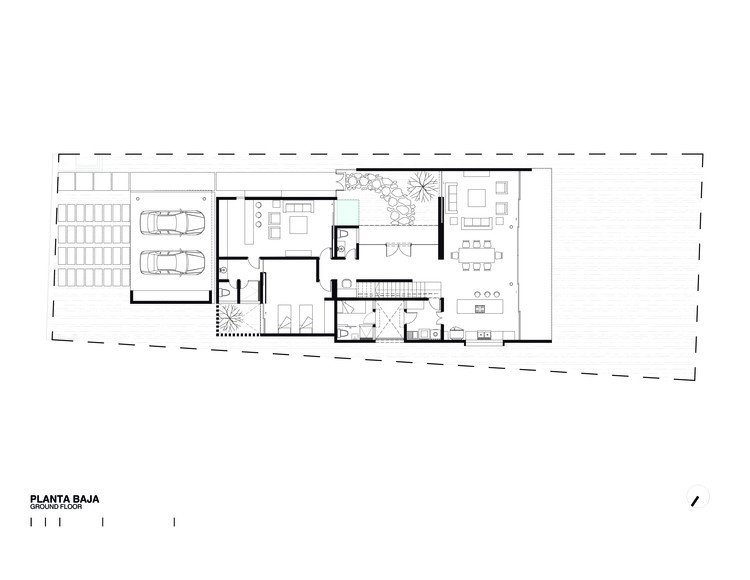
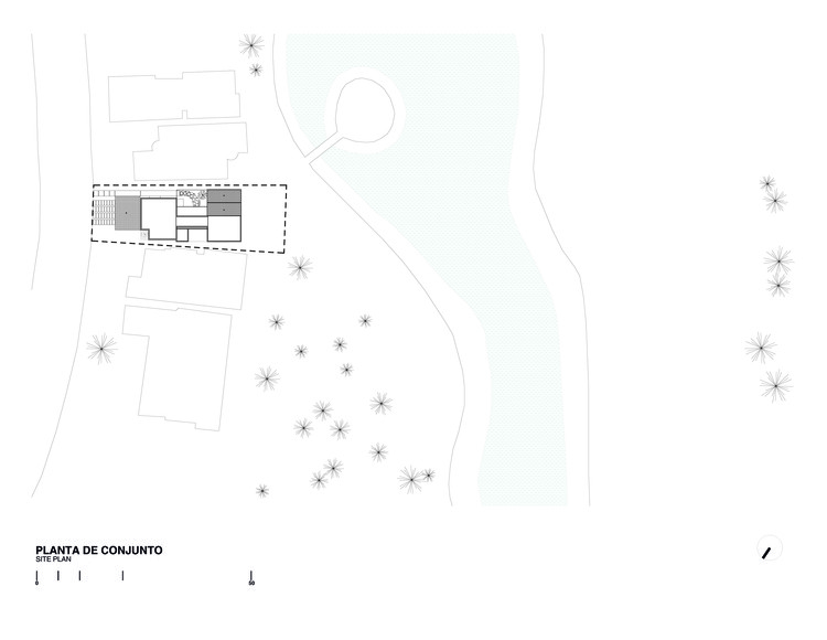
HL-1 House / [H] arquitectos

  • Architects

    [H] arquitectos

  • Location

    Mazatlan, Mexico

  • Category

    Houses

  • Architects in Charge

    Javier Hidalgo, Ezequiel Ruiz, Luis Miguel Verdugo, Javier Sanchez.

  • Area

    488.0 m2

  • Project Year

    2017

  • Photographs

    Onnis Luque


















Подпишитесь на
Estatemag

Получайте ценную информацию о стратегии, культуре и бренде прямо в свой почтовый ящик.


    Подписываясь на получение электронных писем от Motto, вы соглашаетесь с нашей Политикой конфиденциальности. Мы ответственно относимся к вашей информации. Откажитесь от подписки в любое время.