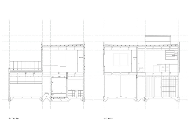
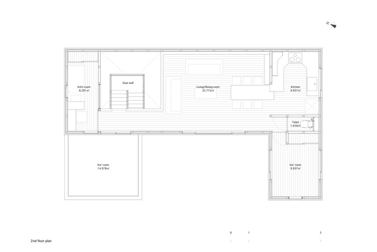
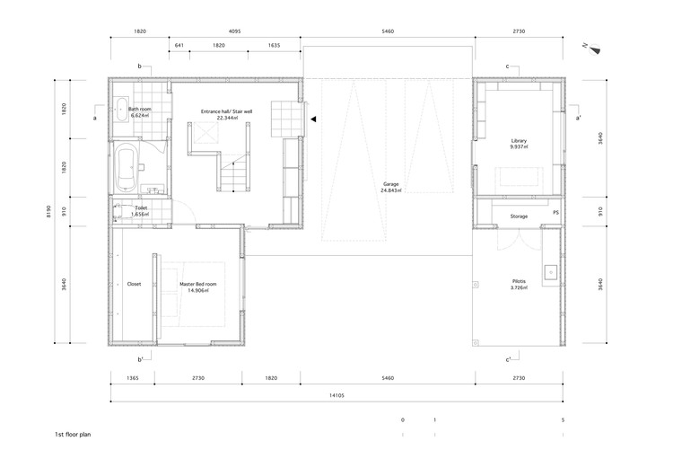
House for Y / kurosawa kawara-ten

  • Architects

    kurosawa kawara-ten

  • Location

    Ichihara, Japan

  • Category

    Houses

  • Lead Architect

    Kenichi Kurosawa

  • Structural Engineer

    Sudo Masataka

  • Area

    89.02 m2

  • Project Year

    2016

  • Photographs

    Kai Nakamura























Подпишитесь на
Estatemag

Получайте ценную информацию о стратегии, культуре и бренде прямо в свой почтовый ящик.


    Подписываясь на получение электронных писем от Motto, вы соглашаетесь с нашей Политикой конфиденциальности. Мы ответственно относимся к вашей информации. Откажитесь от подписки в любое время.