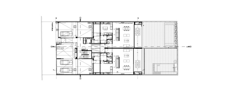
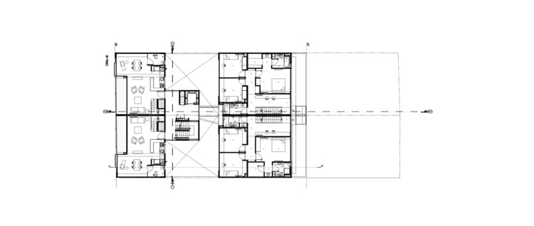
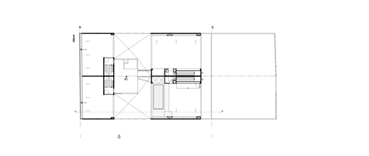
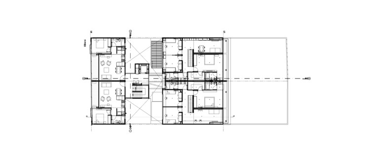
Ibera 1937 / KLM Arquitectos

  • Architects

    KLM Arquitectos

  • Location

    Nunez, Buenos Aires, Argentina

  • Category

    Residential

  • Lead Architect

    Federico Kelly, Paula Lestard, Hernan Maldonado

  • Area

    15069.47 ft2

  • Project Year

    2017

  • Photographs

    Albano Garcia




















Подпишитесь на
Estatemag

Получайте ценную информацию о стратегии, культуре и бренде прямо в свой почтовый ящик.


    Подписываясь на получение электронных писем от Motto, вы соглашаетесь с нашей Политикой конфиденциальности. Мы ответственно относимся к вашей информации. Откажитесь от подписки в любое время.