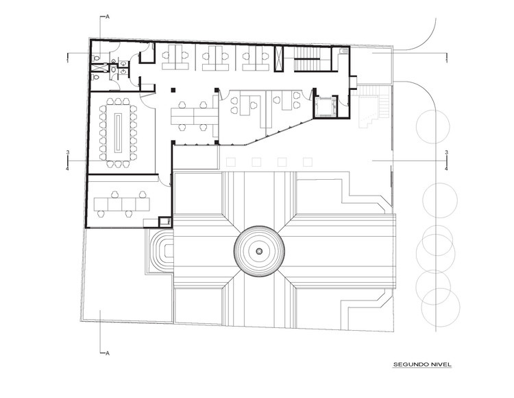
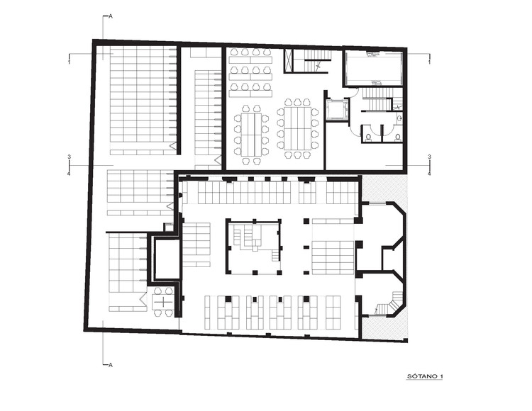
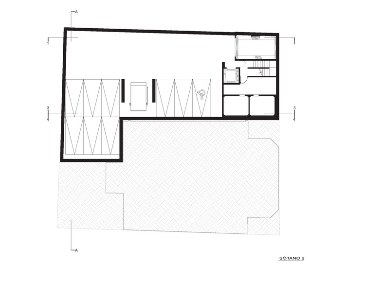
Jewish Documentation and Research Center of Mexico (CDIJUM) / Ezra Cherem Behar & Alan Cherem Hamui

  • Architects

    Ezra Cherem Behar, Alan Cherem Hamui

  • Location

    Cordoba 238, Col. Roma Norte, Del. Cuauhtemoc, CDMX, Mexico

  • Category

    Library

  • Architects in Charge

    Ezra Cherem Behar, Alan Cherem Hamui

  • Collaborators

    Elias Cherem

  • Structural Project

    Ing. Alfonso Chavez Mejia

  • Lightning Project

    Luz + Forma

  • Area

    20537.54 ft2

  • Project Year

    2018

  • Photographs

    LGM Studio – Luis Gallardo


























Подпишитесь на
Estatemag

Получайте ценную информацию о стратегии, культуре и бренде прямо в свой почтовый ящик.


    Подписываясь на получение электронных писем от Motto, вы соглашаетесь с нашей Политикой конфиденциальности. Мы ответственно относимся к вашей информации. Откажитесь от подписки в любое время.