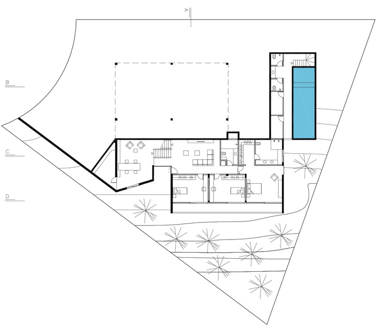
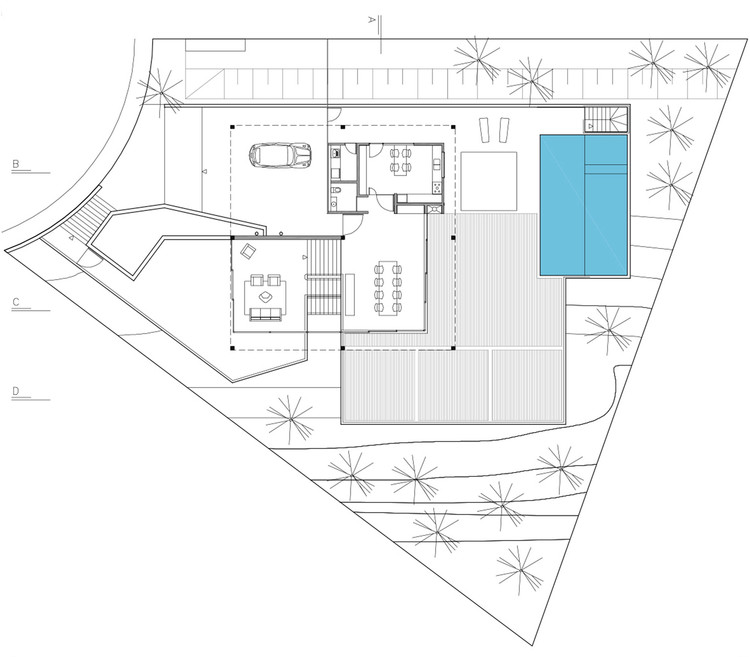
JJ House / Obra Arquitetos

  • Architects

    Obra Arquitetos

  • Location

    Amparo, Brazil

  • Category

    Houses

  • Architect in Charge

    Joao Paulo Daolio, Thiago Natal Duarte

  • Area

    490.0 sqm

  • Project Year

    2015

  • Photographs

    Nelson Kon























Подпишитесь на
Estatemag

Получайте ценную информацию о стратегии, культуре и бренде прямо в свой почтовый ящик.


    Подписываясь на получение электронных писем от Motto, вы соглашаетесь с нашей Политикой конфиденциальности. Мы ответственно относимся к вашей информации. Откажитесь от подписки в любое время.