KAAI37 / META architectuurbureau + architecten De Vylder Vinck Taillieu + noAarchitecten + Office KGDVS
-
Architects
META architectuurbureau, OFFICE Kersten Geers David Van Severen, architecten De Vylder Vinck Taillieu, noAarchitecten
-
Location
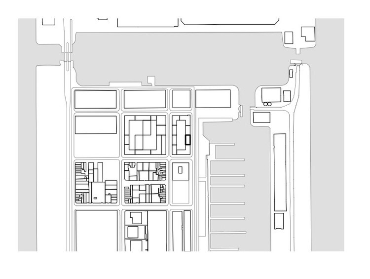
Indiestraat 67, 2000 Antwerpen, Belgium
-
Category
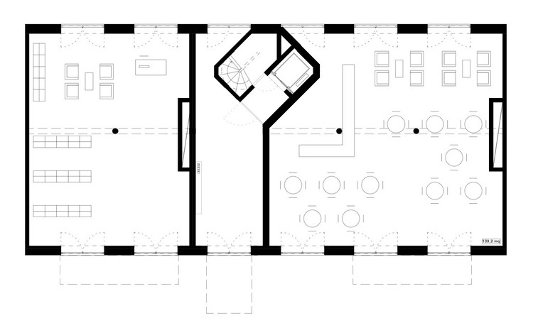
Commercial Architecture
-
META architectuurbureau
Niklaas Deboutte, Eric Soors, Philip Mathieu, Simone Valerio, Cristina Alegre Cubillo
-
architecten De Vylder Vinck Taillieu
Jan de Vylder, Inge Vinck, Jo Taillieu
-
noAarchitecten
Philippe Vierin, An Fonteyne, Jitse van den Berg
-
OFFICE Kersten Geers David Van Severen
Kersten Geers, David Van Severen
-
Landscape design
West 8 Urban Design & Landscape Architecture
-
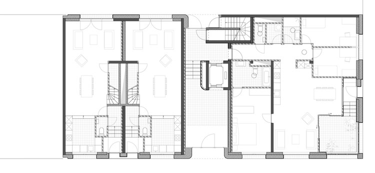
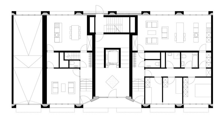
Area
8500.0 m2
-
Project Year
2017
-
Photographs
Filip Dujardin












































Подпишитесь на
Estatemag
Получайте ценную информацию о стратегии, культуре и бренде прямо в свой почтовый ящик.
Подписываясь на получение электронных писем от Motto, вы соглашаетесь с нашей Политикой конфиденциальности. Мы ответственно относимся к вашей информации. Откажитесь от подписки в любое время.
