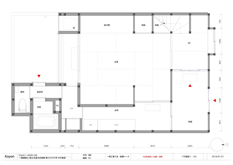
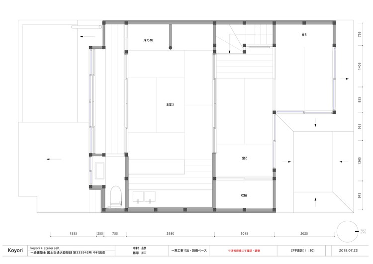
Kyoto Xiaoman / Koyori + Aterier Salt

  • Architects

    Aterier Salt, Koyori

  • Location

    Sainokamicho, Kamigyo Ward, Kyoto, Kyoto Prefecture 602-0814, Japan

  • Category

    Refurbishment

  • Architects in Charge

    Masahiko Nakamura, Yoji Fujiwara

  • Area

    91.85 m2

  • Project Year

    2017

  • Photographs

    Junichi Usui




























Подпишитесь на
Estatemag

Получайте ценную информацию о стратегии, культуре и бренде прямо в свой почтовый ящик.


    Подписываясь на получение электронных писем от Motto, вы соглашаетесь с нашей Политикой конфиденциальности. Мы ответственно относимся к вашей информации. Откажитесь от подписки в любое время.