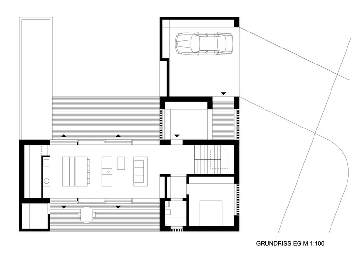
L House / Juri Troy Architects

  • Architects

    Juri Troy Architects

  • Location

    Purkersdorf, Austria

  • Category

    Sustainability

  • Lead Architects

    Juri Troy Architects

  • Design Team

    Juri Troy; Jurgen Schretzmayer; Timea Kos

  • Area

    320.6 m2

  • Project Year

    2018

  • Photographs

    Juri Troy



























Подпишитесь на
Estatemag

Получайте ценную информацию о стратегии, культуре и бренде прямо в свой почтовый ящик.


    Подписываясь на получение электронных писем от Motto, вы соглашаетесь с нашей Политикой конфиденциальности. Мы ответственно относимся к вашей информации. Откажитесь от подписки в любое время.