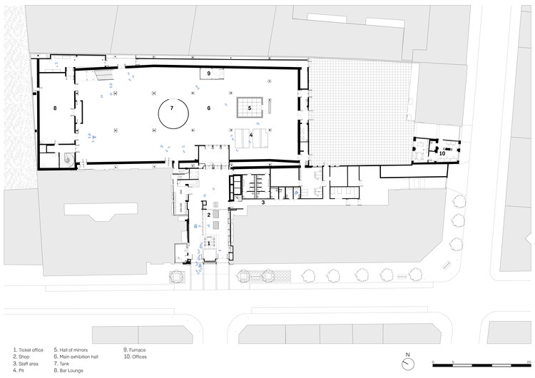
L’Atelier des Lumieres / Atelier Silhouette Urbaine

  • Architects

    Atelier Silhouette Urbaine

  • Location

    38 Rue Saint-Maur, 75011 Paris, France

  • Category

    Adaptive Reuse

  • Team

    CADMOS , Brizot-Masse Ingenierie, META Acoustique, Kerylos Interieurs, CET Ingenierie

  • Area

    3300.0 m2

  • Project Year

    2018

  • Photographs

    Culturespaces



















Подпишитесь на
Estatemag

Получайте ценную информацию о стратегии, культуре и бренде прямо в свой почтовый ящик.


    Подписываясь на получение электронных писем от Motto, вы соглашаетесь с нашей Политикой конфиденциальности. Мы ответственно относимся к вашей информации. Откажитесь от подписки в любое время.