Logan Certified / moss Design

  • Architects

    moss Design

  • Location

    Logan Square, Chicago, IL, United States

  • Category

    Interiors Architecture

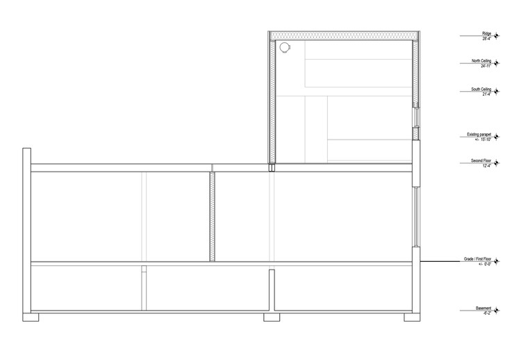
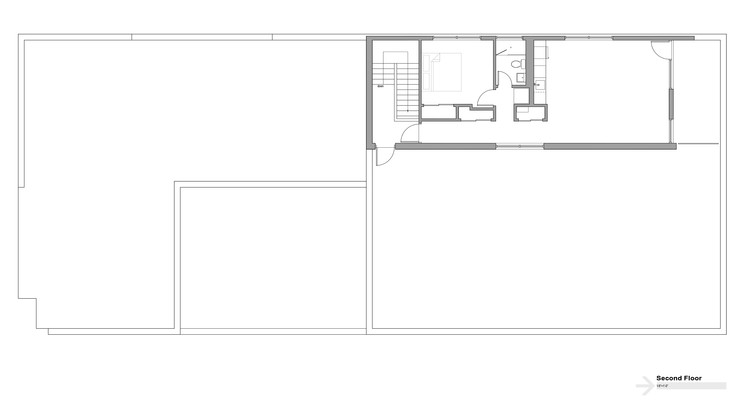
  • Area

    6000.0 ft2

  • Project Year

    2017

  • Photographs

    Carmen Troesser







































Подпишитесь на
Estatemag

Получайте ценную информацию о стратегии, культуре и бренде прямо в свой почтовый ящик.


    Подписываясь на получение электронных писем от Motto, вы соглашаетесь с нашей Политикой конфиденциальности. Мы ответственно относимся к вашей информации. Откажитесь от подписки в любое время.