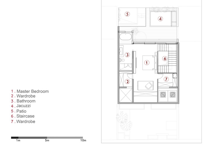
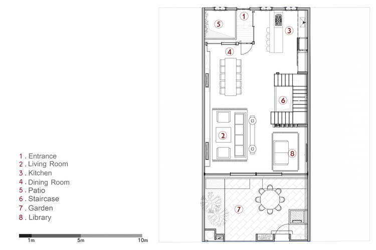
M House / Paz Gersh Architects

  • Architects

    Paz Gersh Architects

  • Location

    Tel Aviv-Yafo, Israel

  • Category

    Houses

  • Design Team

    Zvi Gersh (principal), Zohar Shvarzberg, May Alon

  • Area

    350.0 m2

  • Project Year

    2017

  • Photographs

    Neve Tzedek, Amit Giron


























Подпишитесь на
Estatemag

Получайте ценную информацию о стратегии, культуре и бренде прямо в свой почтовый ящик.


    Подписываясь на получение электронных писем от Motto, вы соглашаетесь с нашей Политикой конфиденциальности. Мы ответственно относимся к вашей информации. Откажитесь от подписки в любое время.