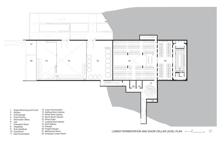
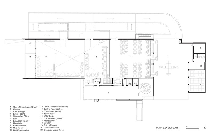
Martin’s Lane Winery / Olson Kundig

  • Architects

    Olson Kundig

  • Location

    Kelowna, British Columbia, Canada

  • Category

    Winery

  • Team credits

    Tom Kundig, FAIA, RIBA, Design Principal; Steve Grim, AIA, LEED® AP BD+C, Project Manager; Michael Picard, LEED® AP and Wonsik Lee, Project Staff

  • Area

    34816.0 ft2

  • Project Year

    2016

  • Photographs

    Nic Lehoux

























































Подпишитесь на
Estatemag

Получайте ценную информацию о стратегии, культуре и бренде прямо в свой почтовый ящик.


    Подписываясь на получение электронных писем от Motto, вы соглашаетесь с нашей Политикой конфиденциальности. Мы ответственно относимся к вашей информации. Откажитесь от подписки в любое время.