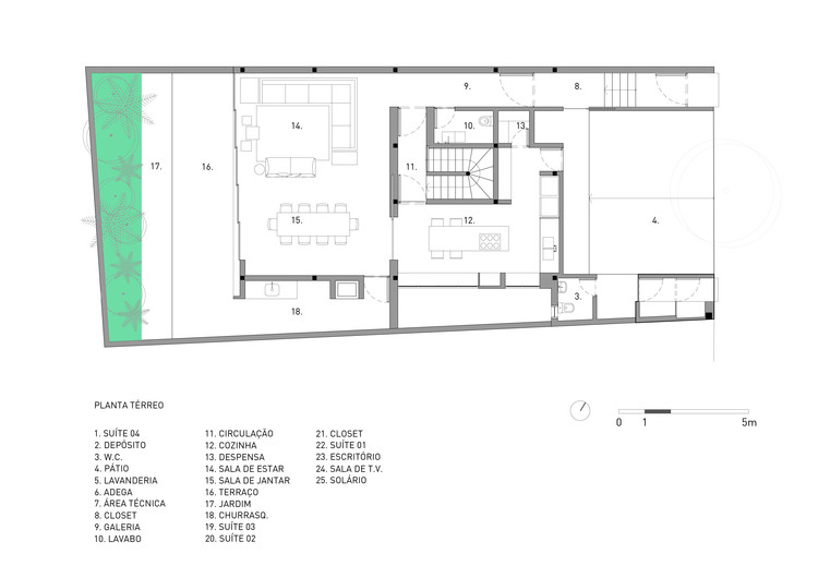
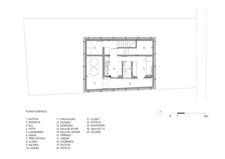
MMS House / Pascali Semerdjian Arquitetos

  • Architects

    Pascali Semerdjian arquitetos

  • Location

    Sao Paulo, Brazil

  • Category

    Houses

  • Responsible Architects

    Sarkis Semerdjian , Domingos Pascali

  • Team

    Sarkis Semerdjian , Domingos Pascali, Roberta Brain, Linda Mattoli, Leopoldo Schettino

  • Area

    411.0 m2

  • Project Year

    2018

  • Photographs

    Ricardo Bassetti





























Подпишитесь на
Estatemag

Получайте ценную информацию о стратегии, культуре и бренде прямо в свой почтовый ящик.


    Подписываясь на получение электронных писем от Motto, вы соглашаетесь с нашей Политикой конфиденциальности. Мы ответственно относимся к вашей информации. Откажитесь от подписки в любое время.