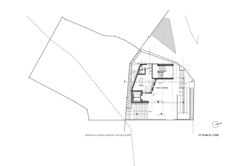
Monorail station of Amanohashidate view land / Koichi Hankai Architect & Associates

  • Architects

    Koichi Hankai Architect & Associates

  • Location

    437 Monju, Miyazu-shi, Kyoto-fu 626-0001, Japan

  • Category

    Train Station

  • Lead Architects

    Koichi Hankai Architect & Associates

  • Area

    299.0 m2

  • Project Year

    2018

  • Photographs

    Yohei Sasakura


















Подпишитесь на
Estatemag

Получайте ценную информацию о стратегии, культуре и бренде прямо в свой почтовый ящик.


    Подписываясь на получение электронных писем от Motto, вы соглашаетесь с нашей Политикой конфиденциальности. Мы ответственно относимся к вашей информации. Откажитесь от подписки в любое время.