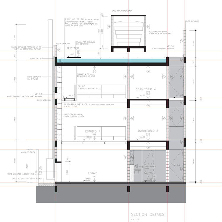
Morro do Querosene House / gruposp

  • Architects

    gruposp

  • Location

    Sao Paulo, Brazil

  • Category

    Houses

  • Principal in charge

    Alvaro Puntoni

  • Project team

    Joao Sodre, Jonathan Davies

  • Area

    360.0 m2

  • Project Year

    2008

  • Photographs

    Nelson Kon


























Подпишитесь на
Estatemag

Получайте ценную информацию о стратегии, культуре и бренде прямо в свой почтовый ящик.


    Подписываясь на получение электронных писем от Motto, вы соглашаетесь с нашей Политикой конфиденциальности. Мы ответственно относимся к вашей информации. Откажитесь от подписки в любое время.