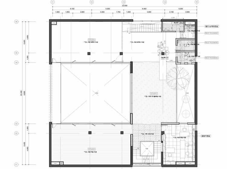
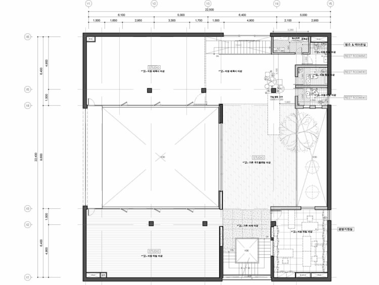
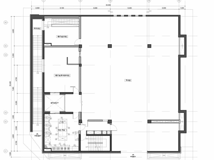
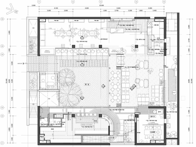
Moss Garden / studioVASE

  • Architects

    studioVASE

  • Location

    Nonhyeon-ro, Gangnam-gu, Seoul, South Korea

  • Category

    Restaurant

  • Lead architect

    studioVASE

  • Team

    studioVASE

  • Area

    866.0 m2

  • Project Year

    2017

  • Photographs

    Woo-Jin Park





























Подпишитесь на
Estatemag

Получайте ценную информацию о стратегии, культуре и бренде прямо в свой почтовый ящик.


    Подписываясь на получение электронных писем от Motto, вы соглашаетесь с нашей Политикой конфиденциальности. Мы ответственно относимся к вашей информации. Откажитесь от подписки в любое время.