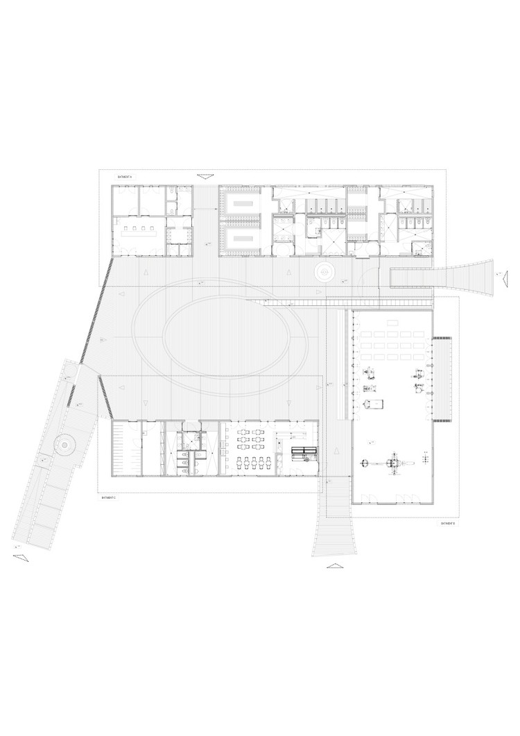
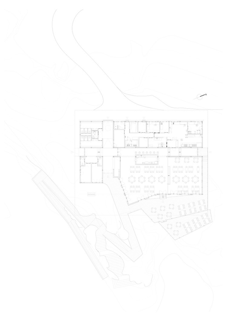
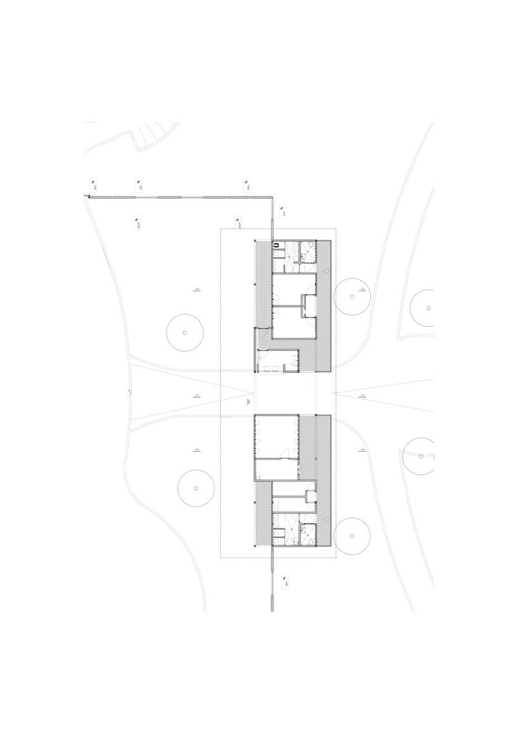
National Park of Mali

  • Architects

    Kere Architecture

  • Location

    Bamako, Mali

  • Category

    Park

  • Architect

    Kere Architecture, Diebedo Francis Kere

  • Project Team

    Diebedo Francis Kere, Isabelle McKinnon, Claudia Buhmann, Olivier Gondouin, Emanuela Smiglak, Ines Bergdolt

  • Landscape Design

    Planning Partners, SA

  • Structural Engineer

    Birad SARL (concrete), SAMKO Turkey (roofing)

  • Plant Engineering

    AKTC (Sylvain Fovet)

  • Client

    AKDN /AKTC

  • Construction Supervision

    AKTC (Roberto Fabbro, Souleymane Diallo, Manuel Mora Sanchez, Hamed el Biblawy) in coordination with Kere Architecture

  • Area

    3000.0 sqm

  • Project Year

    2010

  • Photographs

    Iwan Baan















































Подпишитесь на
Estatemag

Получайте ценную информацию о стратегии, культуре и бренде прямо в свой почтовый ящик.


    Подписываясь на получение электронных писем от Motto, вы соглашаетесь с нашей Политикой конфиденциальности. Мы ответственно относимся к вашей информации. Откажитесь от подписки в любое время.