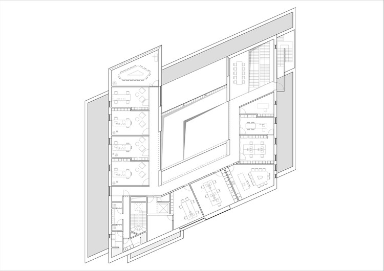
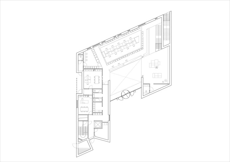
Nelissen Bricks / UAU Collectiv + Architectengroep PSK

  • Architects

    Architectengroep PSK, UAU Collectiv

  • Location

    Lanaken, Belgium

  • Category

    Office Buildings

  • Lead Architects

    UAU collectiv – Massimo Pignanelli, Tom Latet & Anne Geerits, Architectengroep PSK – Guido Ieven, Ward Crabbe & Marc Verheylewegen

  • Area

    2143.0 m2

  • Project Year

    2019

  • Photographs

    Philippe van Gelooven























Подпишитесь на
Estatemag

Получайте ценную информацию о стратегии, культуре и бренде прямо в свой почтовый ящик.


    Подписываясь на получение электронных писем от Motto, вы соглашаетесь с нашей Политикой конфиденциальности. Мы ответственно относимся к вашей информации. Откажитесь от подписки в любое время.