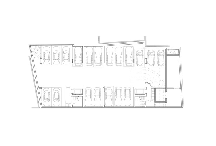
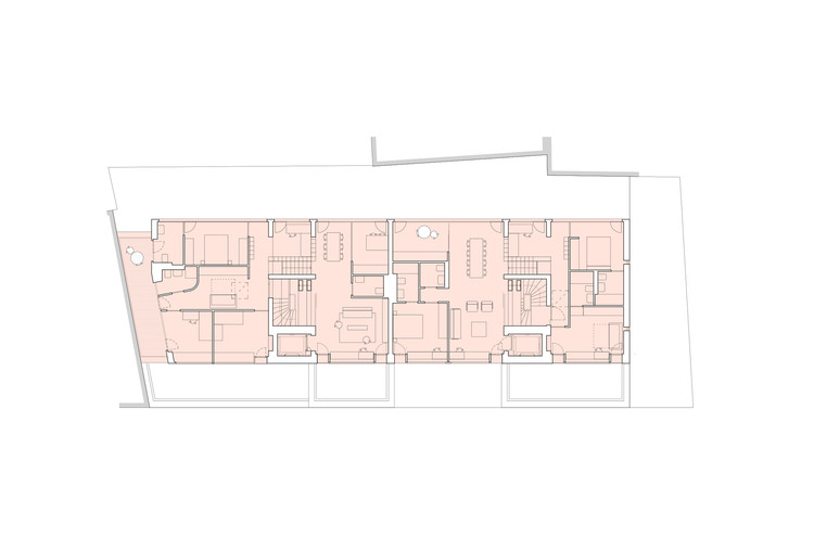
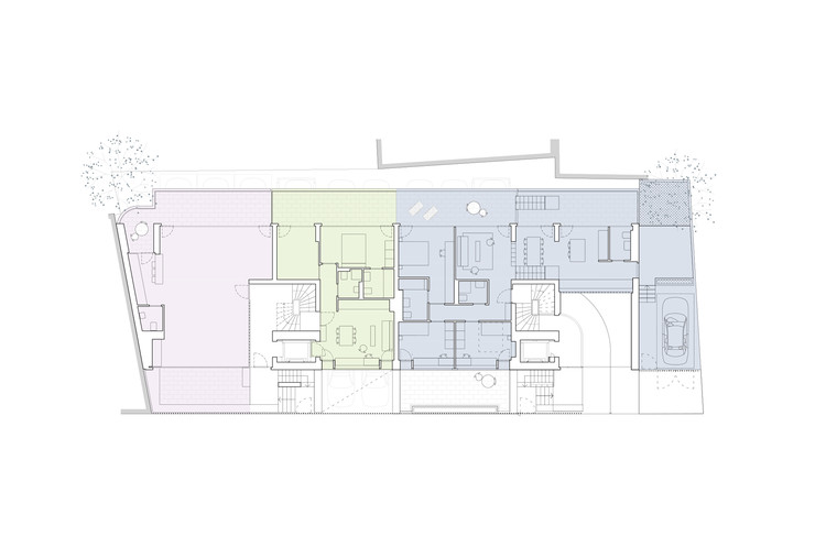
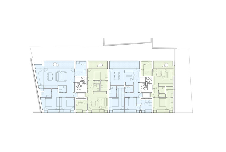
Occidentului 40 / ADNBA

  • Architects

    ADNBA

  • Location

    40 Occidentului Street, Bucharest, Romania

  • Category

    Residential

  • Lead Architects

    Adrian Untaru, Bogdan Brada?eanu, Andrei ?erbescu, Valentina ?igara, Pavel Albu

  • Structure

    WERTYKL

  • Interior and Exterior finishes and facade

    EDIL CONSTRUCT 2004

  • Installations

    INSATERM

  • Client

    sc Dezvoltare Urbana srl

  • Area

    2765.6 m2

  • Project Year

    2017

  • Photographs

    Cosmin Dragomir, Laurian Ghini?oiu, Andrei Margulescu























Подпишитесь на
Estatemag

Получайте ценную информацию о стратегии, культуре и бренде прямо в свой почтовый ящик.


    Подписываясь на получение электронных писем от Motto, вы соглашаетесь с нашей Политикой конфиденциальности. Мы ответственно относимся к вашей информации. Откажитесь от подписки в любое время.