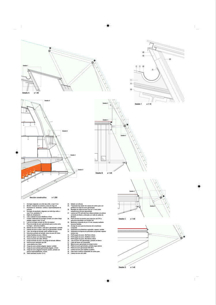
Plasencia Auditorium and Congress Center / Selgas Cano

  • Architects

    Selgas Cano

  • Location

    Cartagena, Murcia, Spain

  • Category

    Cultural Architecture

  • Lead Architects

    Jose Selgas, Lucia Cano

  • Design Team

    Jose de Villar, Carlos Chacon, Julio Cano, Lara Resco, Lorena del Rio, Manuel Cifuentes, Beatriz Quintana, Jeongwoo Choi, Laura Culianez, Barbara Bardin, Johannes Riekert, Cristina Gutierrez

  • Area

    80729.33 ft2

  • Project Year

    2017

  • Photographs

    Iwan Baan



































Подпишитесь на
Estatemag

Получайте ценную информацию о стратегии, культуре и бренде прямо в свой почтовый ящик.


    Подписываясь на получение электронных писем от Motto, вы соглашаетесь с нашей Политикой конфиденциальности. Мы ответственно относимся к вашей информации. Откажитесь от подписки в любое время.